Presentatiebeeld van het pand n° 289288

In verband met dit goed

Referentie: 289288


Ruim appartement met kelders, grote (hoge) doorgang (garage), binnenkoer en magazijn.
Zeer gunstig en rustig gelegen.
Wg, Vg, Gmo, Gvkr, Gvv.
BEZOEK: na afspraak op 0477 32 78 44. Op zaterdag 1/11, op zondag van 9/11 tem 30/11 en op dinsdag van 4/11 tem 2/12 van 14u-16u G score: A P score: D

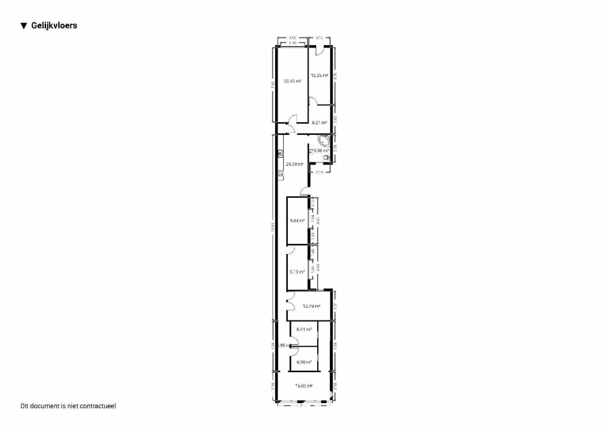
Algemene informatie

  • Vrij op02/01/2026
  • Gebouw1938
  • PandtypeHuizen
  • Oppervlakte van het woongedeelte162m2
  • Kadastraal inkomen1.638 €
  • Aantal gevels2

Samenstelling

  • 5 slaapkamers
  • 1 badkamer
  • 2 WC
  • Kelder

Bijkomende informatie

  • StaatOp te frissen
  • Type verwarmingGas
  • Aantal parkeerplaatsen binnen1

Gebouw en tuin gegevens

  • Oppervlakte kadaster652m2

Energiegegevens

  • Energiescore (kengetal) van het EPC265 kWh/m2
  • RF-Energie labelC
  • Unieke code van het EPC-certificaat20251008-0003704581-RES-1

Stedelijke informatie

  • Stedenbouwkundige vergunning
  • De meest recente stedelijke bestemming van het pand met de benamingen gebruikt in het register met plannenWoongebied

Online verkoop

Doe een bod van

200.000 €

Verkoop informatie

Afgesloten verkoop
Logo van partner Biddit

Startdatum: 25/11/2025 15:00

Einddatum: 03/12/2025 15:00

Geen bod: 1.000 €

De fiche bekijken op Biddit.be

Verkocht door de notaris Notaris Luc Mortelmans

Bezoekgegevens

na afspraak op 0477 32 78 44. Op zaterdag 1/11, op zondag van 9/11 tem 30/11 en op dinsdag van 4/11 tem 2/12 van 14u-16u

Virtueel bezoek

Ontdek het vastgoed tijdens een virtueel bezoek

Nu bezoeken