Presentatiebeeld van het pand n° 290850

In verband met dit goed

Referentie: 290850


Goed bereikbaar.
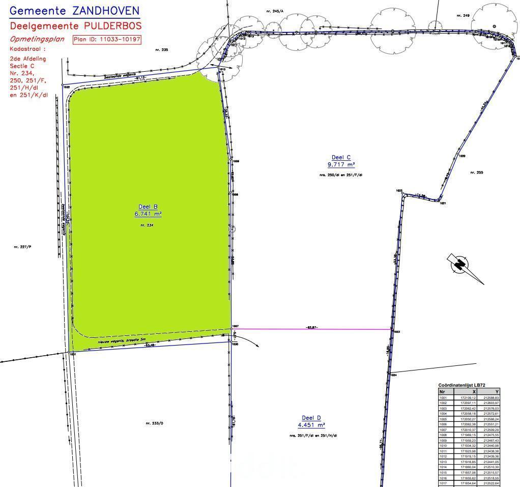
Zijnde Deel B van het plan.
Voorwaardelijk belast met erfdienstbaarheid - zie verkoopsvoorwaarden voor details.
Lwag, Gvg, Gmo, Gvkr, Gvv.
BEZOEK: Vrij te bezichtigen - op eigen risico P score: A

Algemene informatie

  • Vrij vanafBij de akte
  • PandtypeGronden

Gebouw en tuin gegevens

  • Oppervlakte kadaster6741m2

Financiële gegevens

  • Kadastraal inkomen te bepalen

Stedelijke informatie

  • De meest recente stedelijke bestemming van het pand met de benamingen gebruikt in het register met plannenLandschappelijk waardevol agrarisch gebied

Online verkoop

Doe een bod van

53.000 €

Verkoop informatie

Logo van partner Biddit

Startdatum: 13/01/2026 13:00

Einddatum: 21/01/2026 13:00

Geen bod: 1.000 €

De fiche bekijken op Biddit.be

Verkocht door de notaris Michoel, Bremans & Hens, notarissen

Bezoekgegevens

Vrij te bezichtigen - op eigen risico

Infosessie

dinsdag 06/01/2016 - 17u