Presentatiebeeld van het pand n° 289672

In verband met dit goed

Referentie: 289672


Met veel mogelijkheden.
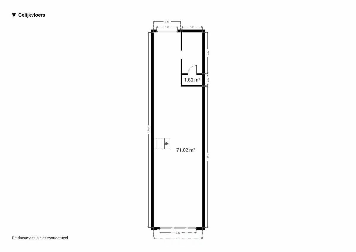
- Gelijkvloers: momenteel ingedeeld als handelszaak (kapperstudio), ruime koer achteraan;
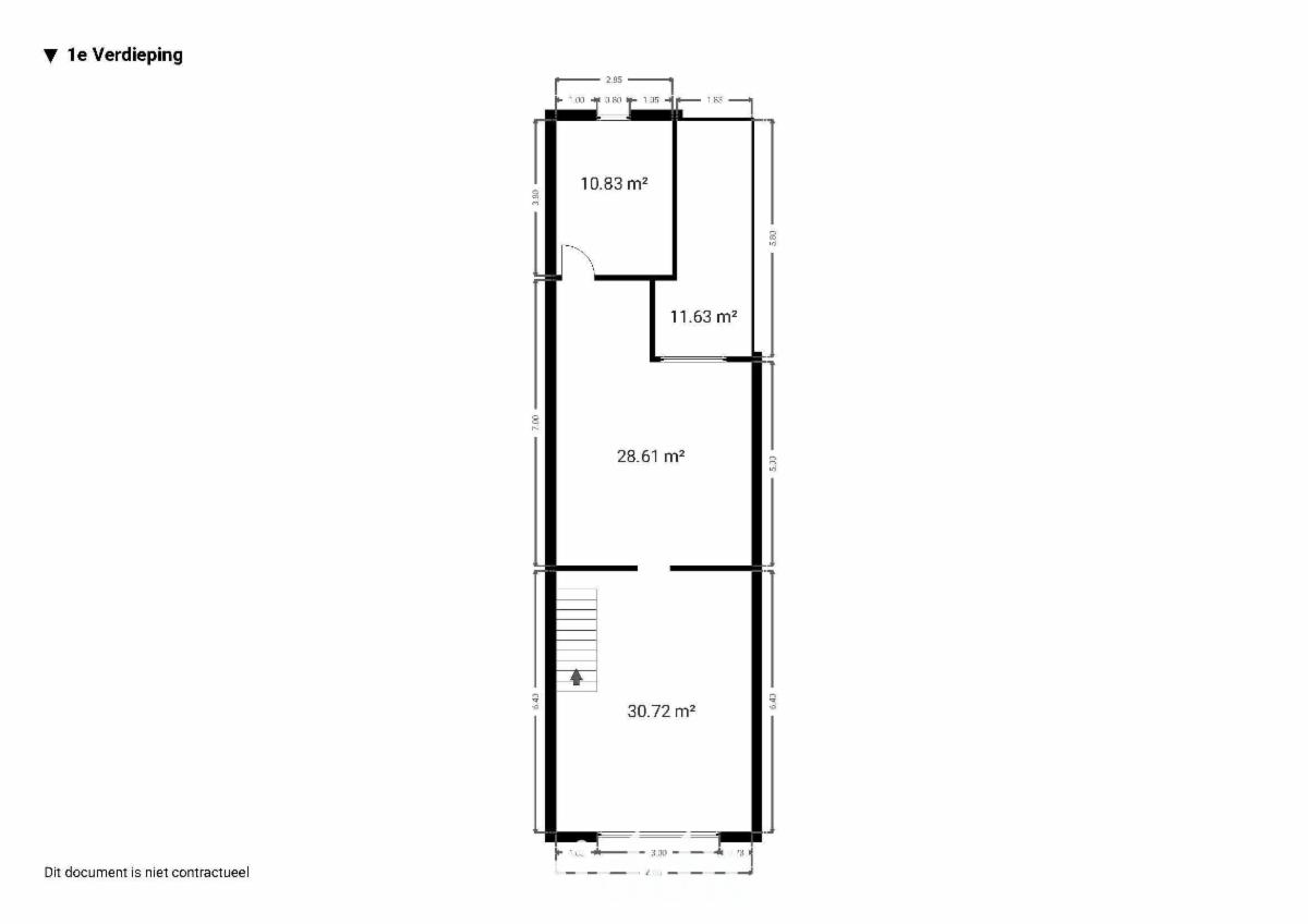
- 1e verdiep: keuken, leefruimte, badkamer;
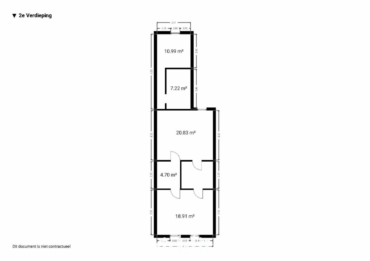
- 2e verdiep: 3 slaapkamers en nog extra opbergruimte, zoals dressing.
Notaris mocht melding ontvangen van de buurvrouw (rechts) dat een afvoerpijp (mogelijks van dampkap) in te herstellen toestand is en mogelijks niet conform vergunning werd geplaatst.
Centrale ligging in een fijne buurt.
Wg, Vg, Gmo, Gvkr, Gvv.
BEZOEK: op dinsdag 18/11, 25/11 van 17u30-19u en woensdag 3/12 van 14u-16u. G score: A P score: B

Algemene informatie

  • Vrij vanafBij de akte
  • Gebouw1932
  • PandtypeHuizen
  • verdieping(en)3
  • Kadastraal inkomen2.869 €
  • Aantal gevels2

Samenstelling

  • 3 slaapkamers
  • 1 badkamer
  • 2 WC
  • Dressing
  • Woonkamer

Bijkomende informatie

  • StaatOp te frissen
  • Type verwarmingGas

Gebouw en tuin gegevens

  • Oppervlakte kadaster180m2

Energiegegevens

  • Energiescore (kengetal) van het EPC281 kWh/m2
  • RF-Energie labelC
  • Unieke code van het EPC-certificaat20250928-0003671233-RES-1

Stedelijke informatie

  • Stedenbouwkundige vergunning
  • De meest recente stedelijke bestemming van het pand met de benamingen gebruikt in het register met plannenWoongebied

Online verkoop

Doe een bod van

162.000 €

Verkoop informatie

Afgesloten verkoop
Logo van partner Biddit

Startdatum: 03/12/2025 11:00

Einddatum: 11/12/2025 11:00

Geen bod: 1.000 €

De fiche bekijken op Biddit.be

Verkocht door de notaris CELIS & LIESSE

Bezoekgegevens

op dinsdag 18/11, 25/11 van 17u30-19u en woensdag 3/12 van 14u-16u.

Virtueel bezoek

Ontdek het vastgoed tijdens een virtueel bezoek

Nu bezoeken