Image de présentation du bien n° 289811

A propos de ce bien

Référence: 289811


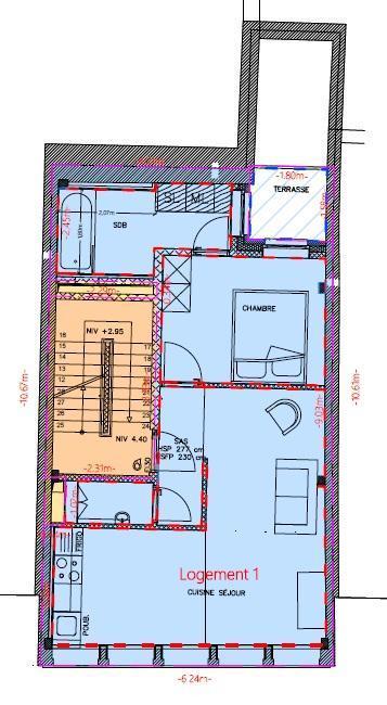
Au sein d'une maison de maître et de caractère totalement rénovée, avec un réel souci du détail et respect des matériaux, très bel appartement à parachever d'une chambre sis au 1er étage. Il est composé d'espaces destinés à accueillir un séjour avec cuisine ouverte, une chambre, un wc, une salle de bain et une terrasse. L'immeuble est vendu en l'état, le parachèvement du duplex étant à charge de l'adjudicataire selon ses goûts, ses envies et ses besoins (il est renvoyé à l'annexe du cahier des charges pour plus d'informations techniques). Il en est de même pour les parties communes. Un bien d'exception dans un quartier historique en plein essor et proche de toutes les commodités (tram, bus, commerces, musées, restaurants, bars, etc).

Informations générales

  • Première occupation
  • Libre à partir duÀ l'acte
  • Construction1850
  • Type de bienAppartements
  • Superficie habitable41m2
  • Nombre de façades1

Composition du bien

  • 1 chambre
  • Salle à manger
  • Séjour

Informations supplémentaires

  • Terrasse
  • Parlophone
  • Vidéophone
  • Etat du bienRénové
  • Etage du bien1

Informations sur le jardin et terrain

  • Superficie cadastrale72m2

Informations énergétiques

  • Raccordé à l'égout

Informations financières

  • Revenu cadastral à définir

Informations urbanistiques

  • Permis d'urbanisme
  • Destination urbanistique la plus récenteZone d'habitat
  • Date du permis d’urbanisme12/06/2020
  • N° du permis d’urbanismePU/88682 C

Données relatives à la protection du patrimoine

  • Procédure de classement au patrimoine en cours
  • Inscription à la liste de sauvegarde ou de classement du patrimoine immobilierOui

Vente online

Faire offre à partir de

50 000 €

Informations de vente

Logo du partenaire Biddit

Date de début: 03/12/2025 13:30

Date de fin: 11/12/2025 13:30

Pas d'enchère: 1 000 €

Voir la fiche sur Biddit.be

Vendu par l'étude Philippe DUSART, société notariale

Informations de visite

Pour toute visite, nous vous prions de prendre contact avec l'étude au 04/230.25.30.