Image de présentation du bien n° 295662

A propos de ce bien

Référence: 295662


G score: C P score: C

Informations générales

  • Libre à partir duAutre
  • Construction1931
  • Type de bienAppartements
  • Revenu cadastral689 €

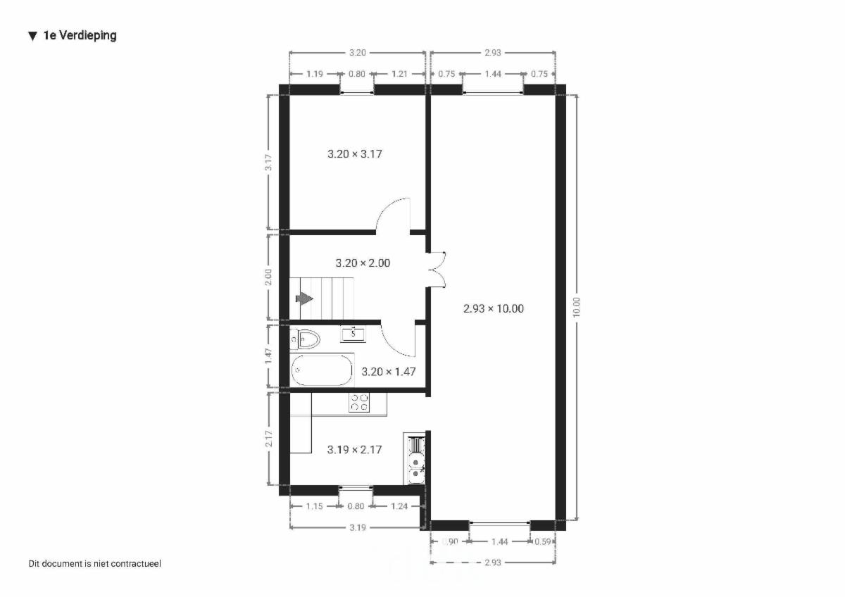
Composition du bien

  • 1 chambre
  • 1 salle de bain
  • 1 WC

Informations supplémentaires

  • Etage du bien1

Informations sur le jardin et terrain

  • Superficie cadastrale95m2

Informations énergétiques

  • Score énergétique (indice) du PEB524 kWh/m2
  • Label énergétique RFF L’obligation légale de rénover peut s’appliquer pour ce bien.
  • Code unique certificat PEB20260309-0003820000-RES-1

Informations urbanistiques

  • Permis d'urbanisme
  • La destination urbanistique la plus récente de ce bien avec les dénominations utilisées dans le registre des plansWoongebied

Vente online

Faire offre à partir de

87 500 €

Informations de vente

Logo du partenaire Biddit

Date de début: 25/05/2026 14:00

Date de fin: 02/06/2026 14:00

Pas d'enchère: 1 000 €

Voir la fiche sur Biddit.be

Vendu par l'étude DECKERS NOTARISSEN

Informations de visite

zonder afspraak, elke dinsdag en elke vrijdag van 12u-14u vanaf 5/5 t.e.m. 29/5.