Image de présentation du bien n° 289371

A propos de ce bien

Référence: 289371


G score: C P score: C

Informations générales

  • Libre le10/02/2026
  • Construction2021
  • Type de bienMaisons
  • Etage(s)2
  • Revenu cadastral718 €
  • Nombre de façades3

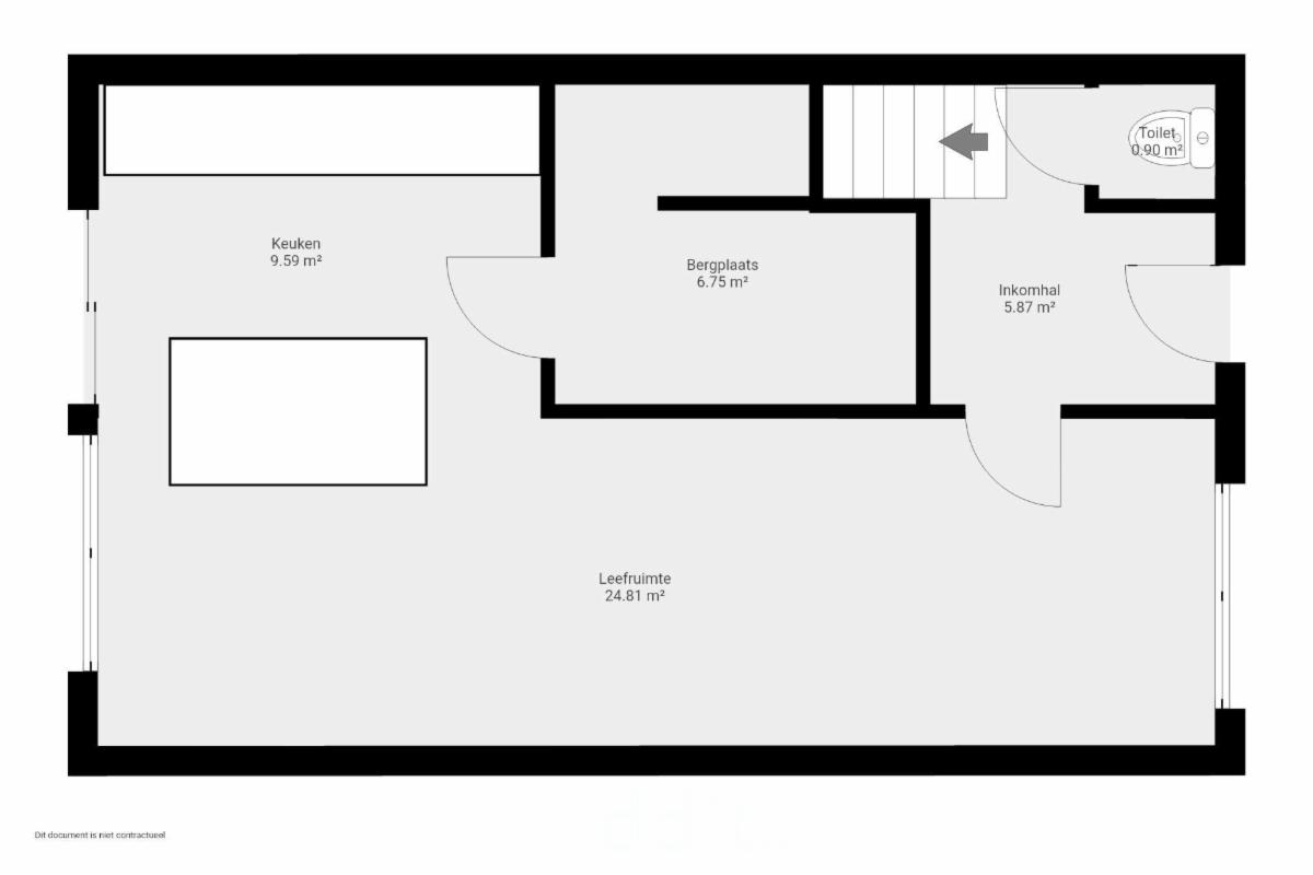
Composition du bien

  • 3 chambres
  • 1 salle de bain
  • 2 WC
  • Cuisine équipée
  • Séjour

Informations supplémentaires

  • Terrasse
  • EnvironnementRésidentiel
  • Etat du bienBon
  • Type de chauffageGaz

Informations sur le jardin et terrain

  • Jardin
  • Superficie cadastrale270m2

Informations énergétiques

  • Chauffage central
  • Panneaux solaires
  • Score énergétique (indice) du PEB18 kWh/m2
  • Label énergétique RFA
  • Attestation de conformité de l'installation électriqueOui, conforme
  • Code unique certificat PEB24001-G-OMV_2018002720/EP02727/A001/D05/SD001

Informations urbanistiques

  • Permis d'urbanisation ou permis de lotir
  • Permis d'urbanisme
  • La destination urbanistique la plus récente de ce bien avec les dénominations utilisées dans le registre des plansWoonuitbreidingsgebied

Documents et pièces jointes

Vente online

Faire offre à partir de

330 000 €

Informations de vente

Vente terminée
Logo du partenaire Biddit

Date de début: 26/11/2025 10:00

Date de fin: 04/12/2025 10:00

Pas d'enchère: 1 000 €

Voir la fiche sur Biddit.be

Vendu par l'étude Geysels Kurt

Informations de visite

(zonder afspraak): elke woensdag vanaf 5 november 2025 tot en met woensdag 3 december 2025, telkens van 14u-15u en elke zaterdag vanaf 8 november 2025 tot en met zaterdag 29 november 2025, telkens van 10u-12u

Visite virtuelle

Découvrez le bien en visite virtuelle !

Visiter maintenant