Image de présentation du bien n° 290068

A propos de ce bien

Référence: 290068


Immeuble de rapport composé de trois logements en plein centre d’Andenne
Plus d'information : https://www.notairedharveng.be/2025/11/17/vente-biddit-immeuble-de-rapport-3-appartements-andenne/
Ils se composent :
Composition :
- Logement du rez-de-chaussée, n°73A : Entrée privative, grand séjour avec coin cuisine, une chambre, salle de douche avec wc, d’une surface de 59 mètres carrés.
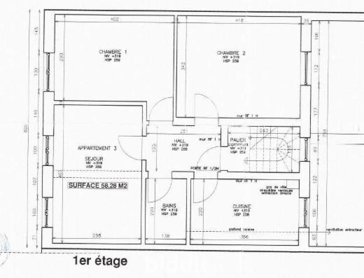
- Logement du 1er étage, n°73B : Hall d’entrée avec entrée commune avec le deuxième étage, un séjour avec une cuisine séparée, 2 chambres et une salle de douche avec wc, d’une surface de 58 mètres carrés, et avec une terrasse en bois.
- Logement du 2ème étage, n°73C : Hall d’entrée, un séjour avec un coin cuisine, une chambre, une salle de bains et un débarras, d’une surface de 57 mètres carrés, et avec une mezzanine.
- Sous-sol : Cave
Compteur d’eau commun et décompteur par appartement.
Compteur électrique et de gaz individuel.
RC : 795,00€
Revenue locatif mensuel total : 1.710,00€
Mise à prix : 230.000,00€
Début enchère 09/12/25
Fin d’enchère 17/12/25
Visites sur rendez-vous avec l’Etude.

Informations générales

  • Immeuble de rapport
  • Libre à partir duÀ définir
  • Type de bienMaisons
  • Revenu cadastral795 €

Composition du bien

  • 4 chambres
  • 1 salle de bain
  • 2 salles de douche
  • Cave
  • Séjour

Informations supplémentaires

  • Terrasse

Vente online

Faire offre à partir de

230 000 €

Informations de vente

Vente terminée
Logo du partenaire Biddit

Date de début: 09/12/2025 14:00

Date de fin: 17/12/2025 14:00

Pas d'enchère: 1 000 €

Voir la fiche sur Biddit.be

Vendu par l'étude Michel d´Harveng et Anne de Voghel, Notaires associés

Informations de visite

Visites sur rendez-vous avec l’Etude.