Image de présentation du bien n° 285177

A propos de ce bien

Référence: 285177


Dans un immeuble à appartements «Résidence Marina», rue Eugène Toussaint 83 :
L’ appartement 3G au 3e étage gauche
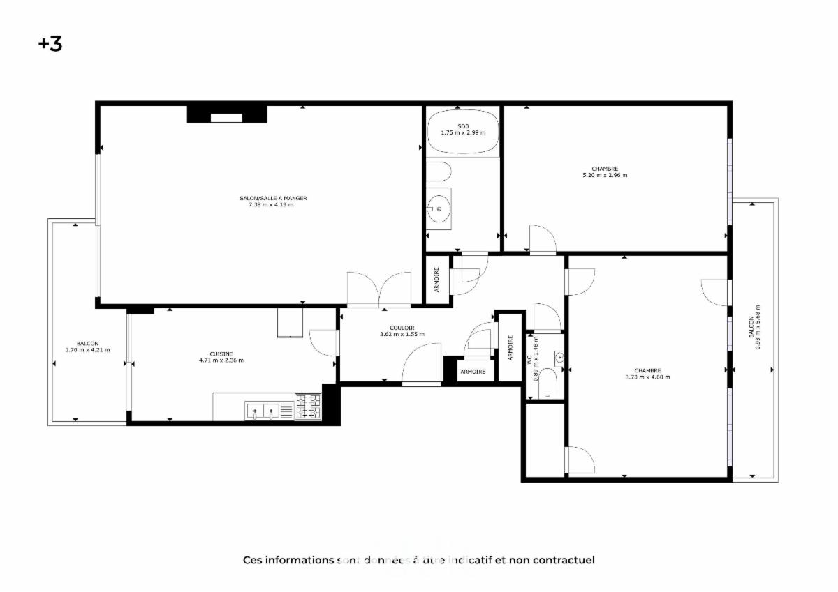
Comprenant : hall, vestiaire, cuisine, terrasse avant, living, sdb, dégagement avec armoires, wc, 3 chambres, grande terrasse arrière, actuellement transformé en un appartement 2 chambres, cave n° 10 au ss-sol.
Le garage n° 3 au ss-sol
R.c.n.i. 1.534€. Libre d’occupation. Zone d’habitation à prédominance résidentielle. PEB : E-/267. Contr. électr. non conforme. Visites : jeudi 2,9 et 16/10/25 de 16-18h et samedi 4, 11 et 18/10/25 de 10-12h.
Début enchères : lundi 13.10.25 à 13h -
Fin enchères : mardi 21.10.25 à 13h -
Mise à prix : 198.750€ -
Enchère min. : 1.000€ -
Sign. acte : vendredi 24.10.25 à 15h30 -
www.biddit.be - Réf. bien: 285177.

Informations générales

  • Libre à partir duÀ l'acte
  • Type de bienAppartements
  • Revenu cadastral1 534 €

Composition du bien

  • 2 chambres
  • 1 salle de bain
  • 1 WC
  • Cave
  • Cuisine équipée
  • Séjour

Informations supplémentaires

  • Terrasse
  • Etage du bien3
  • Nombre d'emplacements à l'intérieur1

Informations énergétiques

  • Label énergétique RBCE-
  • Attestation de conformité de l'installation électriqueOui, non conforme
  • Code unique certificat PEB20250818-0000724369-01-2
  • Consommation spécifique énergie primaire267 kWh/m2/an

Informations urbanistiques

  • Destination urbanistique licite la plus récente et la plus préciseZones d'habitat a prédominance résidentielle

Vente online

Faire offre à partir de

198 750 €

Informations de vente

Vente terminée
Logo du partenaire Biddit

Date de début: 13/10/2025 13:00

Date de fin: 21/10/2025 13:00

Pas d'enchère: 1 000 €

Voir la fiche sur Biddit.be

Vendu par l'étude Van Halteren Notaires

Informations de visite

jeudi 2,9 et 16/10/25 de 16-18h et samedi 4, 11 et 18/10/25 de 10-12h.

Visite virtuelle

Découvrez le bien en visite virtuelle !

Visiter maintenant