Image de présentation du bien n° 288709

A propos de ce bien

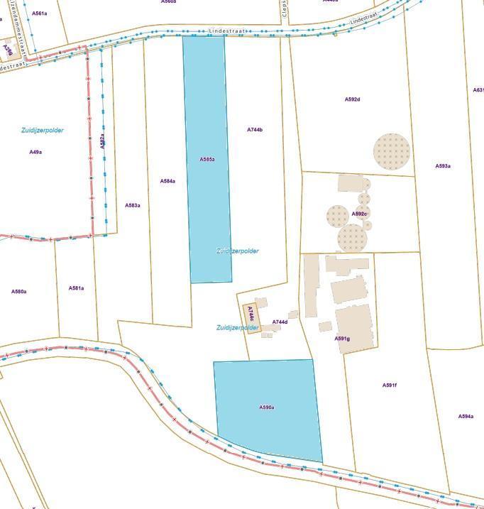
Référence: 288709


2 percelen landbouwgrond te Hoogstade, kadaster sectie A, nummers 590A P0000 en 585A P0000, gezamenlijke oppervlakte van 2ha 98a 70ca.
Gelegen in landschappelijk waardevol agrarisch gebied.
P-score: D & A.

Link naar Biddit: https://www.biddit.be/nl/catalog/detail/288709

Informations générales

  • Libre à partir duÀ l'acte
  • Type de bienTerrains

Informations sur le jardin et terrain

  • Superficie cadastrale29870m2

Informations financières

  • Revenu cadastral à définir

Informations urbanistiques

  • La destination urbanistique la plus récente de ce bien avec les dénominations utilisées dans le registre des plansLandschappelijk waardevol agrarisch gebied

Vente de gré à gré

Prix souhaité

200 000 €

Vendu par l'étude Notaris Jasmine Roels

Vous avez une question sur ce bien ou souhaitez planifier une visite ? Contactez le notaire du vendeur.