Image de présentation du bien n° 287114

A propos de ce bien

Référence: 287114


Dans une maison de commerce, sise chaussée de Ninove 552 :
L’appartement « Lot 1 » au rez-de-chaussée et au ss-sol
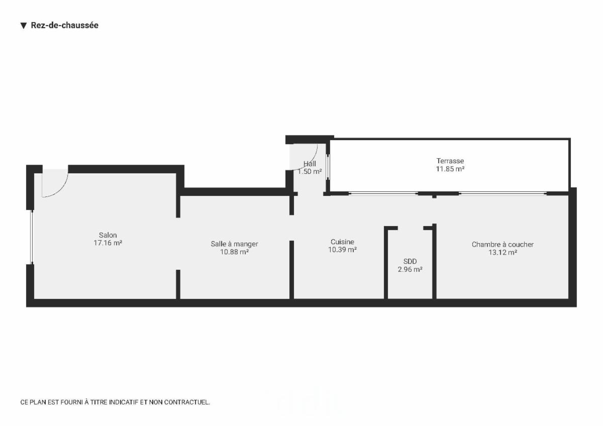
Comprenant au rez-de-ch. : séjour, s. à manger, cuisine, 1 chambre, salle de douche, hall avec escalier vers le sous-sol, sas et chaufferie – au 1er ét. : grenier – sous-sols : caves n°s 1 et 2. R.c.n.i. 487€. Libre d’occupation. Zones mixtes, espaces struct., noyau commercial. PEB G/507. Contr. électr. non conforme. Visites (àpd 27/9 au 18/10 incl.) : chaque mercredi et samedi de 10-12h.
Début enchères : dimanche 12.10.25 à 14h -
Fin enchères : lundi 20.10.25 à 14h -
Mise à prix : 40.000€ -
Enchère min. : 1.000€ -
Sign. acte : vendredi 24.10.25 à 14h -
www.biddit.be - Réf. bien: 287114.

Informations générales

  • Libre à partir duÀ l'acte
  • Type de bienAppartements
  • Revenu cadastral487 €

Composition du bien

  • 1 chambre
  • 1 salle de douche
  • Grenier
  • Cave
  • Cuisine équipée
  • Salle à manger
  • Séjour

Informations énergétiques

  • Label énergétique RBCG
  • Attestation de conformité de l'installation électriqueOui, non conforme
  • Code unique certificat PEB20221228-0000629937-01-0
  • Consommation spécifique énergie primaire507 kWh/m2/an
  • Consommation théorique énergie primaire34 839 kWh/an
  • Autres remarquesZones mixtes, espaces struct., noyau commercial

Informations urbanistiques

  • Destination urbanistique licite la plus récente et la plus préciseZones mixtes

Vente online

Faire offre à partir de

40 000 €

Informations de vente

Logo du partenaire Biddit

Date de début: 12/10/2025 14:00

Date de fin: 20/10/2025 14:00

Pas d'enchère: 1 000 €

Voir la fiche sur Biddit.be

Vendu par l'étude Bodson Benoît, Notaire

Informations de visite

(àpd 27/9 au 18/10 incl.) : chaque mercredi et samedi de 10-12h.

Visite virtuelle

Découvrez le bien en visite virtuelle !

Visiter maintenant