Image de présentation du bien n° 290748

A propos de ce bien

Référence: 290748


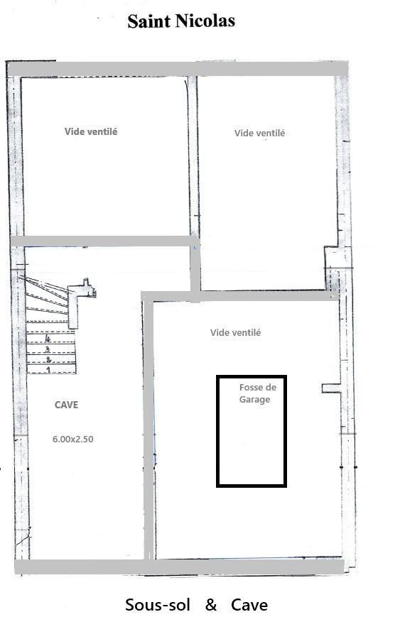
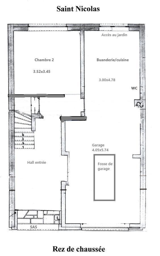
Jolie maison bel-étage récemment rénovée, située sur les hauteurs de Saint-Nicolas et dans une rue calme en cul-de-sac, proche des commerces et facilités. Au rez-de-chaussée : un hall d'entrée, un garage (avec porte sectionnelle motorisée), une buanderie avec accès au jardin, et une chambre de 13 m². Au premier étage, un hall menant à : un séjour de 24 m², une cuisine équipée de 10 m², une chambre de 13 m² avec dressing, une salle de bains et une salle de douche avec WC. Sous-sol : une cave. Extérieurs : un joli petit jardin et deux terrasses.
Equipements : chauffage central au gaz, châssis en PVC double vitrage avec volets électriques, citerne d'eau de pluie (raccordée au WC). PEB : D. Installation électrique conforme.
Opportunité à ne pas rater - à découvrir rapidement !
Visites sur rendez-vous en appelant l'étude au 04/234.73.11 entre 9h et 16h30 et en dehors de ces heures, au 0471/23.38.58.

Informations générales

  • Libre à partir duÀ l'acte
  • Type de bienMaisons
  • Etage(s)1
  • Superficie habitable159m2
  • Revenu cadastral956 €
  • Nombre de façades2

Composition du bien

  • 2 chambres
  • 1 salle de bain
  • 1 salle de douche
  • Cuisine équipée
  • Buanderie
  • Séjour
  • Surface chambre 113m2
  • Surface chambre 213m2
  • Surface cuisine10m2
  • Surface séjour24m2
  • Nombre d'unités d'habitation1

Informations supplémentaires

  • Télédistribution
  • Terrasse
  • EnvironnementUrbain
  • Etat du bienBon
  • Type de chauffageGaz
  • Nombre d'emplacements à l'intérieur1
  • Nombre d'emplacements à l'extérieur1

Informations sur le jardin et terrain

  • Jardin
  • Superficie cadastrale215m2

Informations sur les commodités et facilités

  • Bus à proximité
  • Magasins à proximité
  • Écoles à proximité
  • Autoroute à proximité

Informations énergétiques

  • Raccordé à l'égout
  • Chauffage central
  • Double vitrage
  • Label énergétiqueLabel energétique du bien
  • Attestation de conformité de l'installation électriqueOui, conforme
  • Code unique certificat PEB20241030009718
  • Consommation spécifique énergie primaire266 kWh/m2/an
  • Consommation théorique énergie primaire42 290 kWh/an

Informations urbanistiques

  • Destination urbanistique la plus récenteZone d'habitat

Données relatives à la protection du patrimoine

  • Inscription à la liste de sauvegarde ou de classement du patrimoine immobilierNon

Vente de gré à gré

Prix souhaité

299 000 €

Vendu par l'étude ADVENTILL, société notariale

Vous avez une question sur ce bien ou souhaitez planifier une visite ? Contactez le notaire du vendeur.

Informations de visite

Sur rendez-vous au 04/234.73.11