Image de présentation du bien n° 291074

A propos de ce bien

Référence: 291074



Une maison de maître, offrant de nombreuses possibilités d’aménagement, située Place de Bronckart, 11, à Liège, d’une superficie habitable d’environ 520 m² (superficie PEB) se composant comme suit :
• Au rez-de-chaussée : un hall d’entrée, un salon d’environ 28 m², un living d’environ 32 m², une salle à manger très lumineuse d’environ 35 m², une cuisine, une arrière cuisine, une buanderie, un wc et un jardin.
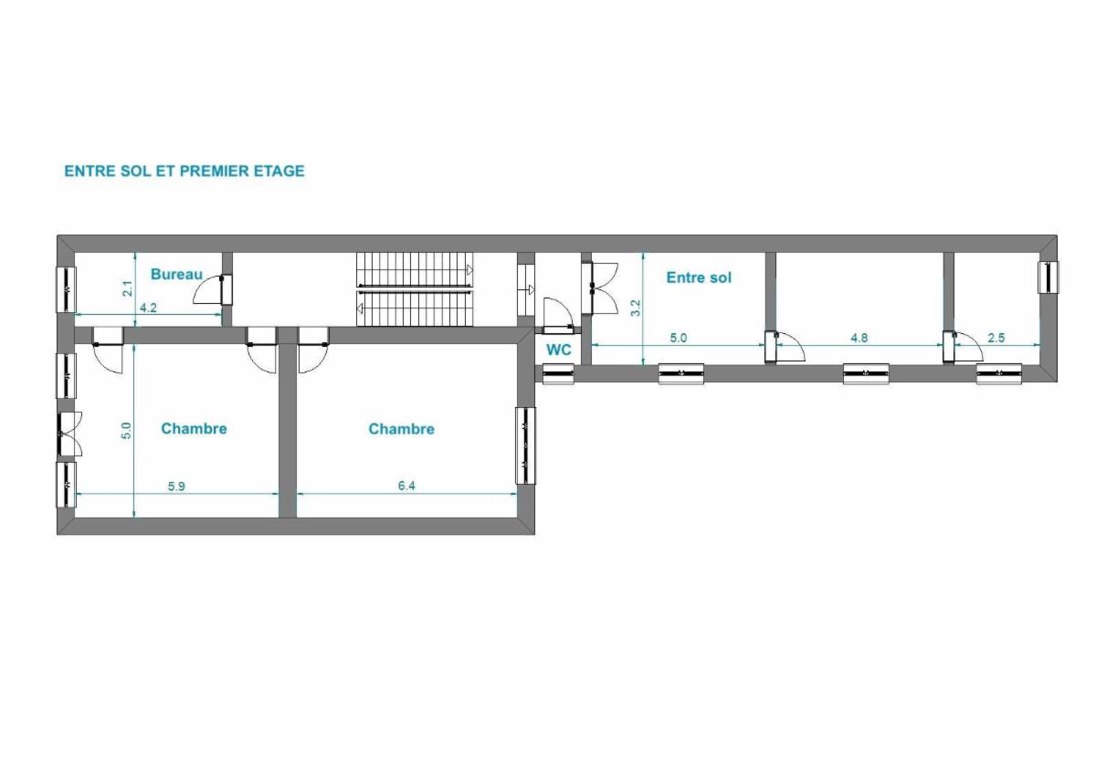
• A l’entre sol : un wc et trois pièces en enfilade d’environ 16 m², 15 m² et 8 m².
• Au premier étage : une chambre d’environ 32 m², une chambre avec balcon d’environ 29 m² et un bureau d’environ 10 m².
• Au deuxième étage : deux chambres d’environ 32m² et 29 m² et une salle de bain d’environ 11 m².
• Au troisième étage : un grenier d’environ 30 m² et 3 pièces d’environ 11 m², 12 m² et 14 m².
• Au sous-sol : quatre caves.
Un emplacement de garage (5m x 2,40m) situé Rue de Chestret, 22 (Résidence "Parking de Chestret").
Caractéristiques : hauts plafonds, parquets en bois massif, moulures élégantes, cheminées d’époque.
Situation : dans le quartier dynamique des Guillemins, à proximité de nombreux commerces, d’écoles et de transports en commun.
Revenu cadastral : 2.627,00 € en ce qui concerne la maison et 89,00 € en ce qui concerne l'emplacement de garage.

Le propriétaire se réserve d’accepter ou non les offres qui lui sont proposées quand bien même le montant proposé serait égal ou supérieur au montant affiché dans l’annonce.

Informations générales

  • Libre à partir duÀ l'acte
  • Construction1899
  • Type de bienMaisons
  • Etage(s)3
  • Superficie habitable520m2
  • Revenu cadastral2 716 €
  • Nombre de façades2

Composition du bien

  • 4 chambres
  • 1 salle de bain
  • Grenier
  • Cave
  • Cuisine équipée
  • Bureau
  • Salle à manger
  • Séjour
  • Grenier accessible par les escaliers
  • Surface chambre 132m2
  • Surface chambre 229m2
  • Surface chambre 332m2
  • Surface chambre 429m2

Informations supplémentaires

  • Etat du bienA rénover
  • Type de chauffageGaz

Informations sur le jardin et terrain

  • Jardin
  • Superficie cadastrale288m2

Informations sur les commodités et facilités

  • Bus à proximité
  • Tram à proximité
  • Gare/trains à proximité
  • Magasins à proximité
  • Écoles à proximité
  • Autoroute à proximité

Informations énergétiques

  • Raccordé à l'égout
  • Label énergétiqueLabel energétique du bien
  • Code unique certificat PEB20250918031257
  • Consommation spécifique énergie primaire321 kWh/m2/an
  • Consommation théorique énergie primaire167 193 kWh/an

Informations urbanistiques

  • Destination urbanistique la plus récenteZone d'habitat

Données relatives à la protection du patrimoine

  • Procédure de classement au patrimoine en cours
  • Inscription à la liste de sauvegarde ou de classement du patrimoine immobilierOui

Documents et pièces jointes

Vente de gré à gré

Prix souhaité

550 000 €

Vendu par l'étude Michel HUBIN, notaire

Vous avez une question sur ce bien ou souhaitez planifier une visite ? Contactez le notaire du vendeur.

Informations de visite

Prendre contact avec l'Etude du Notaire HUBIN au 04/223.66.36