Image de présentation du bien n° 288482

A propos de ce bien

Référence: 288482


Maison à rénover, située au calme dans une impasse rurale à Hoeselt, Grote Zapstraat 41, à 10 minutes du centre de Bilzen et avec un accès facile à l'autoroute E313.
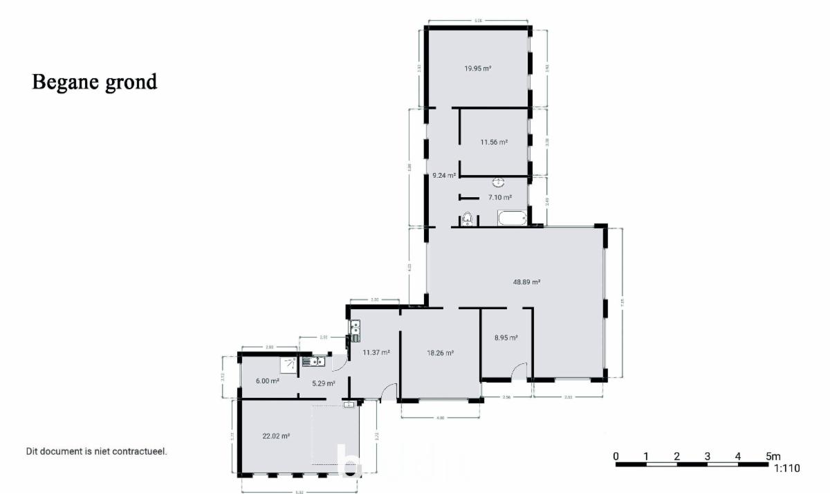
La maison, située sur un vaste terrain au 14A 54CA, est entièrement de plain-pied et offre une surface habitable d'environ 200 m². Elle se compose comme suit :
hall d'entrée, salon, salle à manger, cuisine avec buanderie à l'arrière, véranda, débarras, deux chambres et une salle de bains avec baignoire et WC.
Cette maison, offrant de nombreuses possibilités, dispose également d'un grand jardin, d'un garage spacieux (également accessible par la buanderie) et de deux débarras sur le côté.

Année de construction selon le cadastre : 1969.
IR (impôt sur le revenu) : 932 €.
Situé dans un quartier résidentiel.

Visites : sur rendez-vous auprès de l’étude de Maître Stefan D’Huys à Hasselt (Kortessem).

G score: A P score: C

Informations générales

  • Libre à partir duÀ l'acte
  • Construction1969
  • Type de bienMaisons
  • Revenu cadastral932 €
  • Nombre de façades4

Composition du bien

  • 2 chambres
  • 1 salle de bain
  • 1 WC
  • Véranda
  • Salle à manger
  • Séjour

Informations supplémentaires

  • EnvironnementRural
  • Etat du bienA rénover
  • Type de chauffageMazout
  • Nombre d'emplacements à l'intérieur1

Informations sur le jardin et terrain

  • Jardin
  • Superficie cadastrale1454m2

Informations sur les commodités et facilités

  • Autoroute à proximité

Informations énergétiques

  • Citerne à mazout, gaz ou autre
  • Score énergétique (indice) du PEB1 127 kWh/m2
  • Label énergétique RFF L’obligation légale de rénover peut s’appliquer pour ce bien.
  • Déclaration environnementale ou permis d’environnementNon
  • Code unique certificat PEB20240716-0003314298-RES-1
  • Attestation de conformité des citernes à mazoutOui, conforme

Informations urbanistiques

  • Permis d'urbanisme
  • La destination urbanistique la plus récente de ce bien avec les dénominations utilisées dans le registre des plansWoongebied

Vente online

Faire offre à partir de

175 000 €

Informations de vente

Logo du partenaire Biddit

Date de début: 04/11/2025 14:00

Date de fin: 12/11/2025 14:00

Pas d'enchère: 1 000 €

Voir la fiche sur Biddit.be

Vendu par l'étude NOTARIS STEFAN D´HUYS

Informations de visite

Sur rendez-vous auprès de l'étude du notaire Stefan D'Huys à Hasselt

Visite virtuelle

Découvrez le bien en visite virtuelle !

Visiter maintenant