Image de présentation du bien n° 291722

A propos de ce bien

Référence: 291722


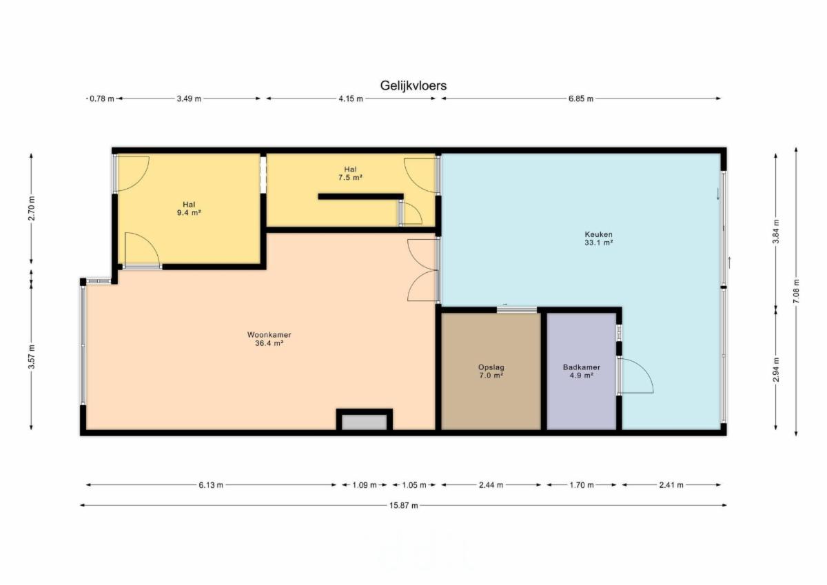
Maison spacieuse et idéalement située sur un magnifique terrain actuellement aménagé en grand jardin arboré. Le terrain offre de nombreuses possibilités de construction et d'aménagement (divisible). Vaste séjour/cuisine, 5 chambres, salle de bains, garage extérieur, accès facile depuis Westkade et Stationsstraat. Possibilité de transformer le bâtiment en une maison écoénergétique. Transports en commun et commerces à proximité.

Un potentiel immense ! G score: C P score: C

Informations générales

  • Libre à partir duÀ l'acte
  • Type de bienMaisons
  • Etage(s)3
  • Superficie habitable154m2
  • Revenu cadastral733 €
  • Nombre de façades2

Composition du bien

  • 5 chambres
  • 1 salle de bain
  • 1 WC
  • Séjour

Informations supplémentaires

  • Etat du bienA rénover
  • Type de chauffageMazout
  • Nombre d'emplacements à l'intérieur1

Informations sur le jardin et terrain

  • Jardin
  • Superficie cadastrale869m2

Informations énergétiques

  • Score énergétique (indice) du PEB490 kWh/m2
  • Label énergétique RFE L’obligation légale de rénover peut s’appliquer pour ce bien.
  • Code unique certificat PEB20251226-0003766281-RES-1

Informations urbanistiques

  • Permis d'urbanisation ou permis de lotir
  • Permis d'urbanisme
  • La destination urbanistique la plus récente de ce bien avec les dénominations utilisées dans le registre des plansWoongebied

Vente online

Faire offre à partir de

250 000 €

Informations de vente

Vente terminée
Logo du partenaire Biddit

Date de début: 12/02/2026 15:00

Date de fin: 20/02/2026 15:00

Pas d'enchère: 1 000 €

Voir la fiche sur Biddit.be

Vendu par l'étude BUYSSE & DE ROO, GEASSOCIEERDE NOTARISSEN

Informations de visite

Tous les mercredis de 16h à 18h, du mercredi 21 janvier 2026 au mercredi 18 février 2026

Visite virtuelle

Découvrez le bien en visite virtuelle !

Visiter maintenant