Image de présentation du bien n° 295945

A propos de ce bien

Référence: 295945


Maison d'habitation avec toutes ses dépendances, située sur un terrain à Bekkevoort (Assent), Struikstraat 88, d'après les extraits cadastraux récents, section I, numéros 0145G2P0000, 0145K2P0000, 0145/L2P0000, 0145V2P0000 et 0145Z2P0000, d'une superficie de dix-neuf ares et neuf centiares (19a 09ca), DPE 20260120-0003779763-RES-1 (486 kWh/m²/an).

Le sol a obtenu la note P (parcelle) : C (faible risque d'inondation dans les conditions climatiques actuelles) pour les parcelles 0145G2P0000 et 0145L2P0000 : A (aucune inondation modélisée) pour 0145K2P0000 et 0145V2P0000 et B (faible risque d'inondation dans le contexte du changement climatique) pour 0145Z2P0000.
Les bâtiments présents (supérieurs à 25 m²) ont un score G (bâtiment) : inconnu pour 0145G2P0000, 0145V2P0000 et 0145Z2P0000 ; A (aucune inondation modélisée) pour 0145K2P0000 ; B (faible risque d'inondation dans le cadre du changement climatique de 2050) pour 0145L2P0000.

Mesures administratives inscrites dans le registre des mesures : non. G score: B P score: C

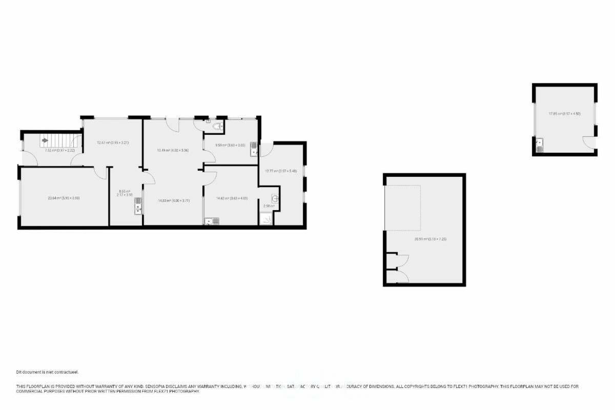
Informations générales

  • Libre le30/07/2026
  • Construction1962
  • Type de bienMaisons
  • Etage(s)2
  • Superficie habitable201m2
  • Revenu cadastral747 €
  • Nombre de façades4

Composition du bien

  • 3 chambres
  • 2 salles de bain
  • 2 WC

Informations supplémentaires

  • EnvironnementRural
  • Etat du bienA rafraichir
  • Nombre d'emplacements à l'intérieur1

Informations sur le jardin et terrain

  • Superficie cadastrale1909m2

Informations énergétiques

  • Score énergétique (indice) du PEB486 kWh/m2
  • Label énergétique RFE L’obligation légale de rénover peut s’appliquer pour ce bien.
  • Code unique certificat PEB20260120-0003779763-RES-1

Informations urbanistiques

  • Permis d'urbanisme
  • La destination urbanistique la plus récente de ce bien avec les dénominations utilisées dans le registre des plansWoongebied met landelijk karakter

Vente online

Faire offre à partir de

172 900 €

Informations de vente

Logo du partenaire Biddit

Date de début: 04/06/2026 12:00

Date de fin: 12/06/2026 12:00

Pas d'enchère: 1 000 €

Voir la fiche sur Biddit.be

Vendu par l'étude Notaris Yves De Ceunynck

Informations de visite

Du 14 au 16 heures, du 2 mai 2026 au 6 juin 2026

Visite virtuelle

Découvrez le bien en visite virtuelle !

Visiter maintenant