Afficher les 22 photos
 
        
      
    
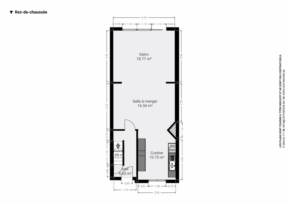
              OPTION !!!! Stembert, dans une rue calme, venez découvrir cette maison mitoyenne rénovée en 2011 et idéale pour un investissement. Elle se compose d'un petit hall d'entrée, d'une belle pièce de vie ouverte avec cuisine/salle à manger et salon. De belles grandes baies vitrées sur le jardin vous apporteront luminosité et vue agréable. Etage : une chambre avec dressing, une salle de douche et une deuxième chambre. Toilette séparée. Sous-sol : caves pratiques. Techniques : installation électrique conforme, chauffage central gaz (chaudière VAILLANT), châssis PVC double vitrage + volets. PEB C ! Réservez votre visite au 0471/13.49.70 
            
