Image de présentation du bien n° 288947

A propos de ce bien

Référence: 288947


G score: A P score: A

Informations générales

  • Libre à partir duImmédiatement
  • Construction1997
  • Type de bienAppartements
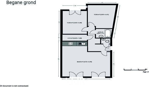
  • Superficie habitable88m2
  • Revenu cadastral938 €

Composition du bien

  • 2 chambres
  • 1 salle de bain
  • 1 WC
  • Cave

Informations supplémentaires

  • Terrasse
  • EnvironnementUrbain
  • Etat du bienBon
  • Type de chauffageGaz
  • Nombre d'emplacements à l'intérieur1

Informations sur le jardin et terrain

  • Superficie cadastrale643m2

Informations énergétiques

  • Chauffage central
  • Score énergétique (indice) du PEB177 kWh/m2
  • Label énergétique RFB
  • Code unique certificat PEB20230302-0002826449-RES-1

Informations urbanistiques

  • Permis d'urbanisme
  • La destination urbanistique la plus récente de ce bien avec les dénominations utilisées dans le registre des plansWoongebied

Documents et pièces jointes

Vente online

Faire offre à partir de

190 000 €

Informations de vente

Vente terminée
Logo du partenaire Biddit

Date de début: 12/11/2025 13:00

Date de fin: 20/11/2025 13:00

Pas d'enchère: 1 000 €

Voir la fiche sur Biddit.be

Vendu par l'étude NOTARIAAT JANSEN & LEROI

Informations de visite

Op zaterdagen 25 oktober, 8 november en 15 november 2025 van 10u tot 12u

Visite virtuelle

Découvrez le bien en visite virtuelle !

Visiter maintenant