Image de présentation du bien n° 289508

A propos de ce bien

Référence: 289508


Patrimoine flamand à rénover
Vente publique volontaire (BIDDIT) d'un joyau du patrimoine flamand à restaurer.
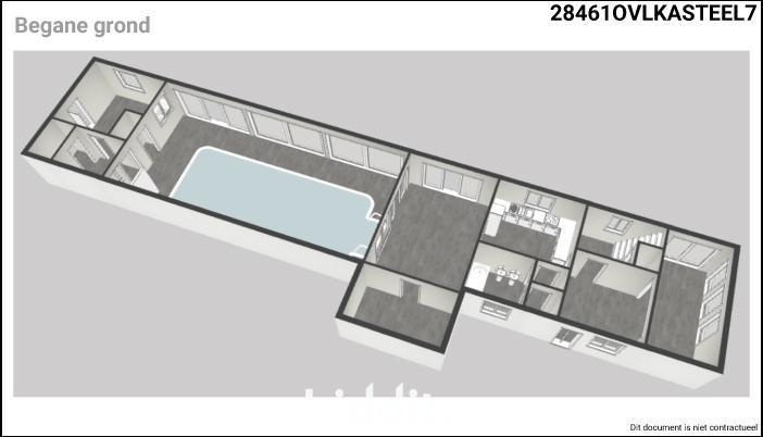
Composition : 1 garage, 3 chambres, 2 salles de bains.
KI 1202 €
EPC : 1073 kWh/(m²an), label F.
Électricité non conforme.
présence d'amiante, cf rapport
LIBRE À PARTIR DE : L'acheteur obtiendra la jouissance et la libre utilisation du bien vendu après avoir payé le prix, les frais et toutes les charges accessoires en principal et les intérêts éventuels.
Attestation foncière vierge. ZV. Terrain agricole/parc/zone naturelle de grande valeur. Inadapté/inhabitable, directive Habitat, zone VEN et IVON, GMO, vkr, Gvv. Patrimoine. Score P : A et D ; score G A et inconnu. Servitudes et dispositions particulières. Une construction/cave a été commencée sur le terrain, qui devra éventuellement être régularisée ou supprimée.
À seulement 30 minutes de Bruxelles et à 15 km de Gand, « La Petite Maison du Faisan »
(Fazantenhuisje) », bâtie en 1912, vous ouvre ses portes. Classée au patrimoine architectural, elle fait partie intégrante de l'histoire du domaine du château Verschaffelt (1870) en tant que maison du chasseur et incarne un charme intemporel.
Le vaste jardin, orienté plein sud, s'étend jusqu'à un étang privé, régulièrement visité par la faune sauvages (oies, hérons, martins-pêcheurs, etc.), dans un paysage qui semble tout droit sorti des peintures de l'école de Sint-Martens-Latem. Ici, chaque saison offre une lumière et une atmosphère uniques.
Entre la maison et la piscine, une construction antérieure a causé des problèmes d'humidité
après une période d'inoccupation. Avec une restauration adaptée, la Fazantenhuisje offre un
potentiel exceptionnel : résidence familiale, lieu de création ou retraite inspirante. Plus qu'une
propriété, c'est un véritable projet de vie au cœur de la nature et de l'histoire.
Points forts :
• Maison classée au patrimoine flamand
• Terrain généreux avec étang privé
• Jardin orienté au sud, cadre préservé et non constructible, sans voisins
• Accessibilité rapide : à quelques minutes à pied de la gare de Moortsele, avec des connexions faciles aux routes, à 15 km de Gand, à 30 min de Bruxelles (E40)
• Piscine intérieure récente
• Occasion rare de restaurer une demeure historique G score: A P score: D

Informations générales

  • Libre à partir duÀ l'acte
  • Type de bienMaisons
  • Etage(s)1
  • Revenu cadastral1 202 €
  • Nombre de façades4

Composition du bien

  • 3 chambres
  • 2 salles de bain
  • 3 WC

Informations supplémentaires

  • Etat du bienA rénover
  • Nombre d'emplacements à l'intérieur1

Informations sur le jardin et terrain

  • Superficie cadastrale9209m2

Informations énergétiques

  • Score énergétique (indice) du PEB1 073 kWh/m2
  • Label énergétique RFF L’obligation légale de rénover peut s’appliquer pour ce bien.
  • Code unique certificat PEB20250512-0003589275-RES-1

Informations urbanistiques

  • Permis d'urbanisme
  • La destination urbanistique la plus récente de ce bien avec les dénominations utilisées dans le registre des plansLandschappelijk waardevol agrarisch gebied, Parkgebied, Natuurgebied

Documents et pièces jointes

Vente online

Faire offre à partir de

300 000 €

Informations de vente

Logo du partenaire Biddit

Date de début: 03/12/2025 14:00

Date de fin: 11/12/2025 14:00

Pas d'enchère: 1 000 €

Voir la fiche sur Biddit.be

Vendu par l'étude Henrist, De Mulder & Bultereys, Geassocieerde Notarissen

Informations de visite

1/11 de 14h à 17h 2/11 de 14h à 17h 8/11 de 14h à 17h 9/11 de 14h à 17h 15/11 de 14h à 17h 16/11 de 14h à 17h 22/11 de 14h à 17h 23/11 de 14h à 17h 29/11 de 14h à 17h 30/11 de 14h à 17h 6/12 de 14h à 17h 7/12 de 14h à 17h

Visite virtuelle

Découvrez le bien en visite virtuelle !

Visiter maintenant