Image de présentation du bien n° 291326

A propos de ce bien

Référence: 291326


G score: A P score: A

Informations générales

  • Libre à partir duÀ l'acte
  • Construction1953
  • Type de bienMaisons
  • Etage(s)2
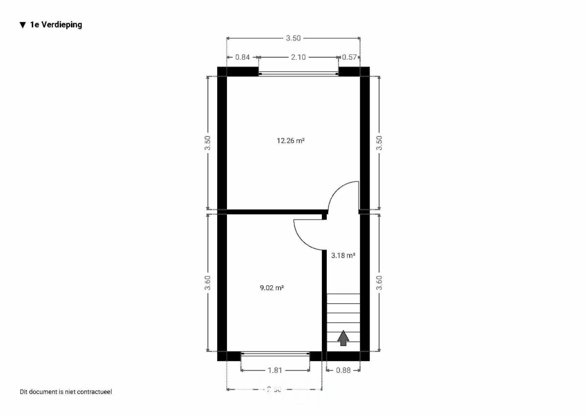
  • Superficie habitable124m2
  • Revenu cadastral374 €
  • Nombre de façades3

Composition du bien

  • 2 chambres
  • 1 salle de bain
  • 1 WC

Informations supplémentaires

  • Etat du bienA rénover
  • Type de chauffageGaz
  • Nombre d'emplacements à l'intérieur1

Informations sur le jardin et terrain

  • Jardin
  • Superficie cadastrale398m2

Informations énergétiques

  • Score énergétique (indice) du PEB938 kWh/m2
  • Label énergétique RFF L’obligation légale de rénover peut s’appliquer pour ce bien.
  • Code unique certificat PEB20251031-0003723691-RES-1

Informations urbanistiques

  • La destination urbanistique la plus récente de ce bien avec les dénominations utilisées dans le registre des plansWoongebied

Vente online

Faire offre à partir de

172 000 €

Informations de vente

Vente terminée
Logo du partenaire Biddit

Date de début: 09/02/2026 14:00

Date de fin: 17/02/2026 14:00

Pas d'enchère: 1 000 €

Voir la fiche sur Biddit.be

Vendu par l'étude Notaris Katherine De Wispelaere

Informations de visite

elke dinsdag van 10u-12u en elke zaterdag van 12u-14u vanaf dinsdag 13/1 tem zaterdag 14/2.

Visite virtuelle

Découvrez le bien en visite virtuelle !

Visiter maintenant