Image de présentation du bien n° 295537

A propos de ce bien

Référence: 295537


G score: A P score: C

Informations générales

  • Libre à partir duÀ l'acte
  • Construction1954
  • Type de bienMaisons
  • Etage(s)1
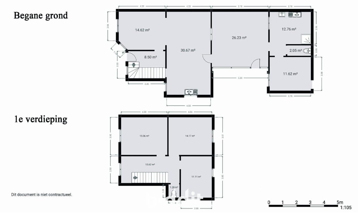
  • Superficie habitable217m2
  • Revenu cadastral610 €
  • Nombre de façades3

Composition du bien

  • 3 chambres
  • 1 salle de bain
  • 1 WC
  • Grenier
  • Véranda
  • Buanderie
  • Séjour

Informations supplémentaires

  • EnvironnementRésidentiel
  • Etat du bienA rénover
  • Type de chauffageGaz
  • Nombre d'emplacements à l'intérieur1

Informations sur le jardin et terrain

  • Superficie cadastrale1074m2

Informations énergétiques

  • Chauffage central
  • Score énergétique (indice) du PEB721 kWh/m2
  • Label énergétique RFF L’obligation légale de rénover peut s’appliquer pour ce bien.
  • Code unique certificat PEB20190719-0002179598-RES-1

Informations urbanistiques

  • Permis d'urbanisme
  • La destination urbanistique la plus récente de ce bien avec les dénominations utilisées dans le registre des plansWoongebied

Documents et pièces jointes

Vente online

Faire offre à partir de

135 000 €

Informations de vente

Vente terminée
Logo du partenaire Biddit

Date de début: 11/05/2026 13:00

Date de fin: 19/05/2026 13:00

Pas d'enchère: 2 000 €

Voir la fiche sur Biddit.be

Vendu par l'étude BOESMANS Paul & Steven, geassocieerde notarissen

Informations de visite

Van 27/4 tot 18/5: elke maandag van 14u30-16u30 & elke woensdag van 14u30-16u30. Daarbuiten enkel na afspraak met notariskantoor.

Visite virtuelle

Découvrez le bien en visite virtuelle !

Visiter maintenant