Image de présentation du bien n° 285181

A propos de ce bien

Référence: 285181


Très bel immeuble de bureaux, idéalement situé, entre la Rue Féronstrée et Quai de la Goffe (Quai de Batte). Cet immeuble est situé à proximité de toutes les commodités, notamment de la nouvelle ligne du tram.
Parking public à proximité (Interparking Saint Georges) - possibilité de location au mois au prix indicatif de 140 euros.

Il est composé :
-au sous-sol: de quatre caves, de trois toilettes, de deux salles de bain, d'une chaufferie ainsi que d'une pièce,
-au rez-de-chaussée: d'un hall d'entrée, d'une cuisine, de quatre bureaux d'une superficie d'environ 10m², d'un bureau d'une superficie de 17.51m²,
-au 1er étage: d'un hall, d'une toilette, d'un bureau de 7m², de deux bureaux d'environ 10m², d'un grand bureau de 40m²,
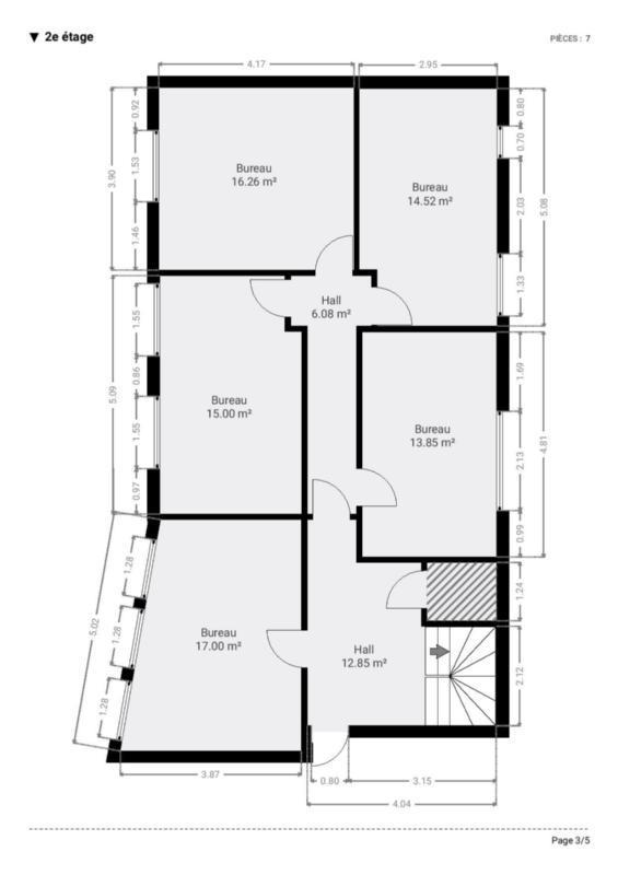
-au 2ème étage: d'un hall, de cinq bureaux d'environ 15m²,
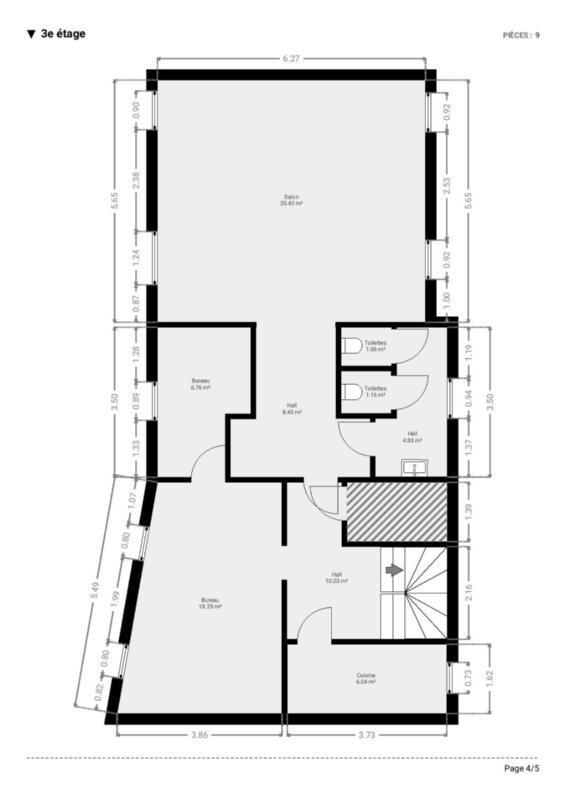
-au 3ème étage: d'un hall, de deux toilettes, d'une cuisine, d'un petit bureau d'environ 7m², d'un bureau d'environ 18m² et d'un grand salon de 35m²

!! Une société aura le droit de maintenir son siège dans l'immeuble ainsi que sa boite aux lettres, avec possibilité pour elle de venir relever son courrier.

Pour plus d'informations et/ou une visite, n'hésitez pas à nous contacter au 04/367.54.33

Plans 2D disponibles en annexes.

Cet immeuble est repris dans l’inventaire du patrimoine immobilier culturel (nature du bien : monument).

Informations générales

  • Libre à partir duÀ l'acte
  • Type de bienBureaux
  • Etage(s)3
  • Revenu cadastral11 155 €
  • Nombre de façades2

Composition du bien

  • 2 salles de bain
  • 6 WC
  • Cave
  • Cuisine équipée
  • Surface cuisine9m2
  • Surface cave52m2

Informations supplémentaires

  • Type de chauffageGaz

Informations sur le jardin et terrain

  • Superficie cadastrale125m2

Informations sur les commodités et facilités

  • Bus à proximité
  • Tram à proximité
  • Magasins à proximité
  • Écoles à proximité

Informations énergétiques

  • Chauffage central

Informations urbanistiques

  • Permis d'urbanisme
  • Vente soumise à autorisation
  • Destination urbanistique la plus récenteZone d'habitat
  • Date du permis d’urbanisme26/09/1991
  • N° du permis d’urbanisme59877

Données relatives à la protection du patrimoine

  • Inscription à la liste de sauvegarde ou de classement du patrimoine immobilierOui

Vente de gré à gré

Faire offre à partir de

510 000 €

Vendu par l'étude ETUDE NOTARIALE DE CHENEE - Société Notariale

Vous avez une question sur ce bien ou souhaitez planifier une visite ? Contactez le notaire du vendeur.

Informations de visite

Les visites auront lieu uniquement sur rendez-vous par téléphone au numéro suivant: 04/367.54.33 (à l'exception des mercredi et vendredi après-midi, l'étude étant sur répondeur) ou par e-mail à l'adresse coline.antoine.182659@belnot.be

Visite virtuelle

Découvrez le bien en visite virtuelle !

Visiter maintenant