Afficher les 25 photos
Une maison de rapport
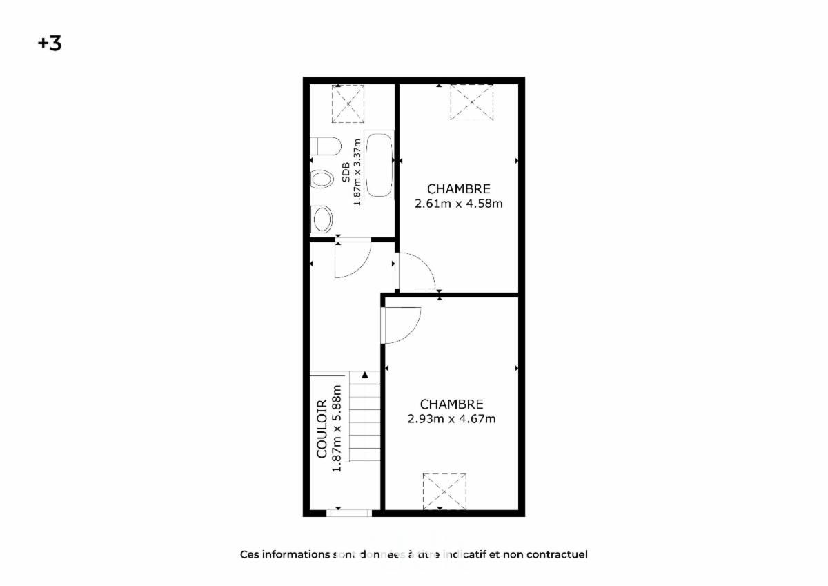
Sise rue Camille Simoens 10, sup. 90ca. Comprenant : sous-sol : entrée, salon, cuisine, sdb et wc - rez : salon/s. à m., coin cuisine, sdd et wc – 1er ét. : salon/s. à m., cuisine, wc - 2e ét. : salon/s. à m, cuisine - 3e ét. :2 chambres, sdb avec wc.
R.c.n.i. 1.466€. Louée. Zone d’habitation, ZICHEE. PEB : G/354 (ss-sol), F/310 (rdc), F/309 (1e ét.), G/538 (2e et 3e ét. (duplex). Contr. électr. non conforme. Visites sans RDV àpd 18/10/25 : lundis 20-27/10 et 3-10/11/25 de 15-17h et samedis 18-25/10 et 8/11/25 de 14-16h.
Début des enchères : mardi 04.11.25 à 12h -
Fin des enchères : mercr. 12.11.25 à 12h -
Mise à prix : 250.000€ -
Enchère min. : 1.000€ -
Sign. acte : vendredi 14.11.25 à 14h30 -
www.biddit.be - Réf. bien : 277314.
250 000 €
Date de début: 04/11/2025 12:00
Date de fin: 12/11/2025 12:00
Pas d'enchère: 1 000 €
Voir la fiche sur Biddit.besans RDV àpd 18/10/25 : lundis 20-27/10 et 3-10/11/25 de 15-17h et samedis 18-25/10 et 8/11/25 de 14-16h.