Image de présentation du bien n° 282687

A propos de ce bien

Référence: 282687


Une maison de rapport
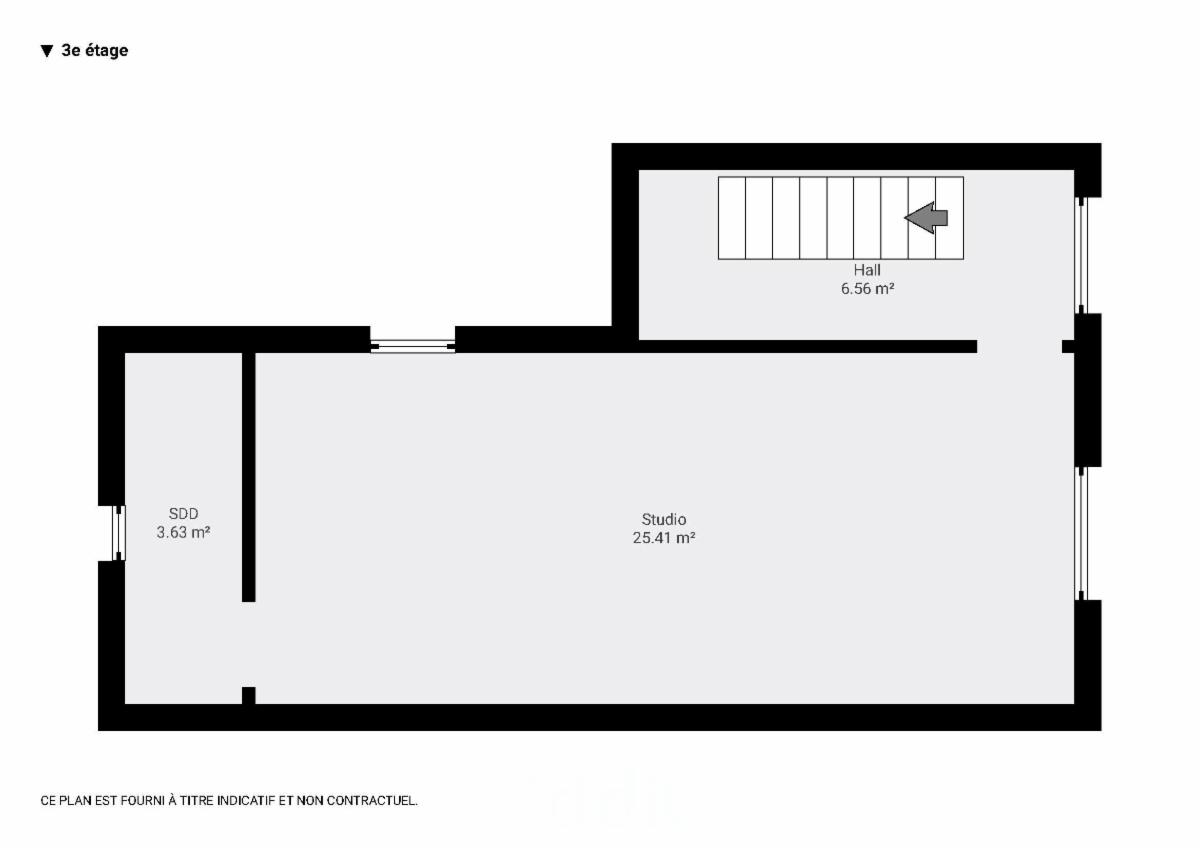
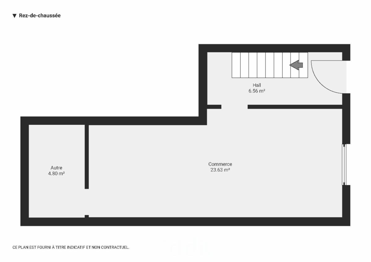
Rue Saint-Ghislain 50, sup. 41ca. Comprenant : rez : hall, commerce - 1er , 2e et 3e ét. chacun : hall, studio, sdd - 4e ét. : hall, salon, sdd - 5e ét . : 1 chambre. R.c.n.i. 891€. Occ. : rez : commerce libre d’occupation - 4 logements loués. Zone d’habitation à prédominance résidentielle, ZICHEE. PEB : F/299 (1er ét.) - G/387 (2e ét.) - G/387 (3e ét.) - G/1015 (4e ét.) Contr. électr. non conforme. Visites : samedis 22/11, 29/11 et 6/12/25 de 10-12h et mardis 25/11, 02/12 et 09/12/25 de 16-18h.
Début enchères : mardi 02.12.25 à 13h -
Fin enchères : mercredi 10.12.25 à 13h -
Mise à prix : 350.000€ -
Enchère min. : 1.000€ -
Sign. acte : mardi 16.12.25 à 10h -
www.biddit.be - Réf. bien : 282687.

Informations générales

  • Immeuble de rapport
  • Libre à partir duAutre
  • Type de bienMaisons
  • Etage(s)5
  • Revenu cadastral891 €

Composition du bien

  • 1 chambre
  • 4 salles de douche
  • Séjour

Informations sur le jardin et terrain

  • Superficie cadastrale41m2

Informations énergétiques

  • Attestation de conformité de l'installation électriqueOui, non conforme
  • Autres remarquesZone d’habitation à prédominance résidentielle, ZICHEE. PEB : F/299 (1er ét.) - G/387 (2e ét.) - G/387 (3e ét.) - G/1015 (4e ét.)

Informations financières

  • % actuel loué80%

Informations urbanistiques

  • Destination urbanistique licite la plus récente et la plus préciseZones d'habitat a prédominance résidentielle

Vente online

Faire offre à partir de

300 000 €

Informations de vente

Vente terminée
Logo du partenaire Biddit

Date de début: 02/12/2025 13:00

Date de fin: 10/12/2025 13:00

Pas d'enchère: 1 000 €

Voir la fiche sur Biddit.be

Vendu par l'étude Van Halteren Notaires

Informations de visite

samedis 22/11, 29/11 et 6/12/25 de 10-12h et mardis 25/11, 02/12 et 09/12/25 de 16-18h.

Visite virtuelle

Découvrez le bien en visite virtuelle !

Visiter maintenant