Image de présentation du bien n° 289894

A propos de ce bien

Référence: 289894


Située dans un quartier recherché de Liège, cette maison de ville à rénover offre de belles possibilités. Elle se développe sur plusieurs niveaux alliant caractère, espace et fonctionnalité.
Au sous-sol, vous trouverez deux pièces de stockage d’environ 11,5 m² et 15,7 m², idéales pour une buanderie, une cave à vin ou un atelier.
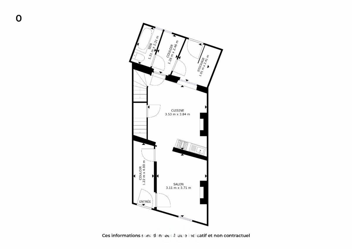
Le rez-de-chaussée accueille un couloir d’entrée menant à un salon lumineux d’environ 11,5 m² et à une cuisine spacieuse d’environ 13,6 m². Un couloir arrière dessert également une salle de bains et WC, ainsi qu’un espace de stockage supplémentaire.
À l’étage, le coin nuit se compose de deux chambres spacieuses : la première d’environ 14,4 m², la seconde d’environ 16 m².
Enfin, le grenier complète le bien avec deux pièces communicantes d’environ 17 m² chacune.

Informations générales

  • Libre à partir duÀ l'acte
  • Type de bienMaisons
  • Superficie habitable95m2
  • Revenu cadastral396 €

Composition du bien

  • 4 chambres
  • 1 salle de bain
  • Grenier
  • Cuisine équipée
  • Séjour
  • Surface chambre 114m2
  • Surface chambre 215m2
  • Surface chambre 317m2
  • Surface chambre 417m2
  • Surface cuisine13m2
  • Surface séjour11m2

Informations supplémentaires

  • Etat du bienA rénover

Informations sur les commodités et facilités

  • Bus à proximité
  • Gare/trains à proximité
  • Magasins à proximité
  • Écoles à proximité

Informations énergétiques

  • Label énergétiqueLabel energétique du bien
  • Code unique certificat PEB20250906007283
  • Consommation spécifique énergie primaire496 kWh/m2/an
  • Consommation théorique énergie primaire55 522 kWh/an

Informations urbanistiques

  • Destination urbanistique la plus récenteZone d'habitat

Données relatives à la protection du patrimoine

  • Inscription à la liste de sauvegarde ou de classement du patrimoine immobilierNon

Vente online

Faire offre à partir de

40 000 €

Informations de vente

Logo du partenaire Biddit

Date de début: 09/12/2025 13:00

Date de fin: 17/12/2025 13:00

Pas d'enchère: 1 000 €

Voir la fiche sur Biddit.be

Vendu par l'étude Fabienne JEANDRAIN, Notaire

Etudes supplémentaires

Fabienne JEANDRAIN, Notaire

Informations de visite

Visites sur rendez-vous