Image de présentation du bien n° 288359

A propos de ce bien

Référence: 288359


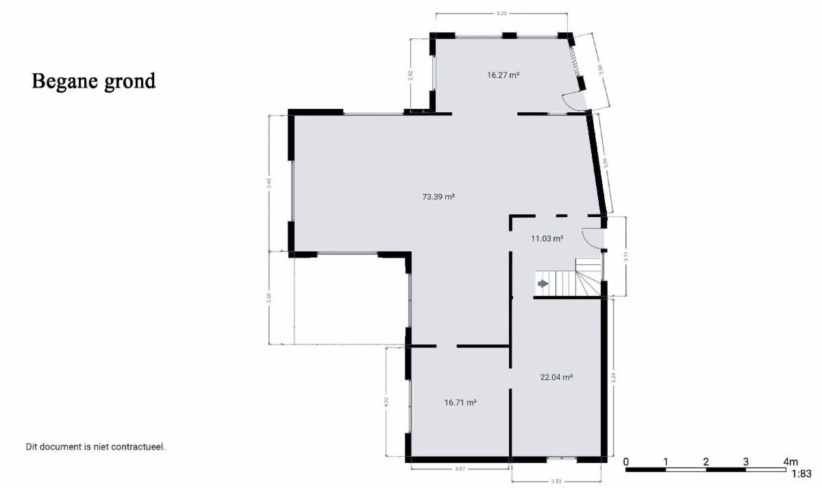
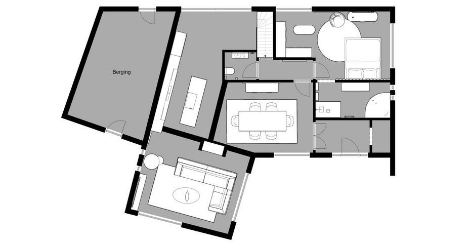
Villa entièrement à amenager à votre goût : actuellement 3 chambres - cuisine - salle à manger - salon - 2 salles de bains - grand jardin - garage G score: A P score: A

Informations générales

  • Libre à partir duÀ l'acte
  • Construction1968
  • Type de bienMaisons
  • Etage(s)2
  • Revenu cadastral1 043 €
  • Nombre de façades4

Composition du bien

  • 3 chambres
  • 2 salles de bain
  • 2 WC
  • Salle à manger
  • Séjour

Informations supplémentaires

  • Etat du bienA rénover
  • Type de chauffageMazout
  • Nombre d'emplacements à l'intérieur1

Informations sur le jardin et terrain

  • Jardin
  • Superficie cadastrale2070m2

Informations énergétiques

  • Score énergétique (indice) du PEB960 kWh/m2
  • Label énergétique RFF L’obligation légale de rénover peut s’appliquer pour ce bien.
  • Code unique certificat PEB20220327-0002570221-RES-1

Informations urbanistiques

  • Permis d'urbanisme
  • La destination urbanistique la plus récente de ce bien avec les dénominations utilisées dans le registre des plansAgrarisch gebied

Vente de gré à gré

Prix indicatif

265 000 €

Vendu par l'étude Bénédicte van Parijs & Shenna Van Parijs - Geassocieerde notarissen

Vous avez une question sur ce bien ou souhaitez planifier une visite ? Contactez le notaire du vendeur.

Kantoor Not. van Parijs & van Parijs
Created with Sketch. Created with Sketch.

Visite virtuelle

Découvrez le bien en visite virtuelle !

Visiter maintenant