Presentatiebeeld van het pand n° 291883

In verband met dit goed

Referentie: 291883


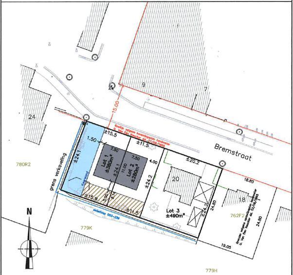
In de Bremstraat te Sint-Niklaas bieden wij twee verkavelde bouwloten aan op een uitstekende en centrale locatie. Deze gronden zijn ideaal voor wie comfortabel wil wonen met alle voorzieningen op wandelafstand.
De loten zijn gelegen vlakbij het postkantoor, diverse scholen, het station, cinema en de levendige Stationsstraat met winkels, horeca en diensten. Een perfecte combinatie van bereikbaarheid, stadsleven en woonkwaliteit.

Beschikbare loten:
Lot 1: 380 m², prijs = €200.000,00-
Lot 2: 280 m², prijs = €150.000,00-

Beide percelen bieden mooie mogelijkheden voor het realiseren van een gezinswoning of investering, met een vlotte verbinding naar openbaar vervoer en belangrijke invalswegen.

Troeven:
Centrale en gegeerde ligging
Nabij winkels, scholen, station en ontspanning
Verkavelde en bouwklare gronden
Ideaal voor eigen bewoning of investering

Interesse in één van deze bouwloten in het hart van Sint-Niklaas? Neem gerust contact op met het notariskantoor, via Suleika@notarisvh.be. P score: D

Algemene informatie

  • Vrij vanafBij de akte
  • PandtypeGronden

Gebouw en tuin gegevens

  • Oppervlakte kadaster660m2

Faciliteit gegevens

  • Nabijgelegen bus
  • Nabijgelegen trein/station
  • Nabijgelegen winkels
  • Scholen
  • Autoweg

Energiegegevens

  • Water
  • Aansluiting aan de riolering

Financiële gegevens

  • Kadastraal inkomen te bepalen

Stedelijke informatie

  • De meest recente stedelijke bestemming van het pand met de benamingen gebruikt in het register met plannenWoongebied
  • overstromingsgebiedNiet gelegen in een overstromingsgevoelig gebied

Naam van de voorkooprechthebbende overheid (bij prioriteit)

  • Het onroerend goed is beschermd of opgenomen in een vastgestelde inventarisNeen

Uit de hand te koop

Gewenste prijs

200.000 €

Verkocht door de notaris HOUTSAEGER & HAEMERS, GEASSOCIEERDE NOTARISSEN

Heeft u een vraag over dit pand of wenst u een bezoek in te plannen? Neem contact op met de notaris van de verkoper.

Bezoekgegevens

Neem contact op met het notariskantoor, via Suleika@notarisvh.be of 03/776.08.64