Presentatiebeeld van het pand n° 285491

In verband met dit goed

Referentie: 285491


In een gebouwencomplex gelegen Brits Tweedelegerlaan 39-41-43-45
In gebouw 1 :
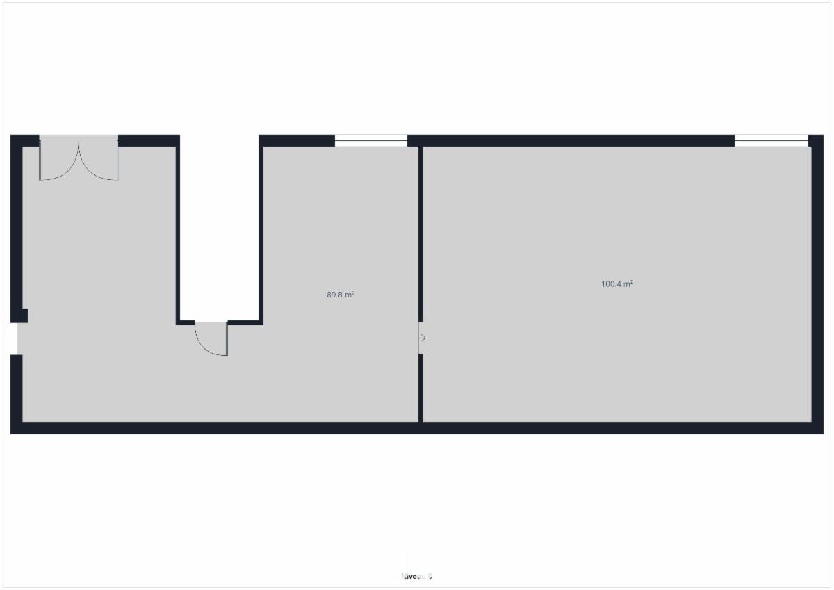
Lot 1 : De handelszaak nr 1 op glvl. CO.REZ/1
Omvattende de commerciële ruimte. N.g.k.i. 1.786€.
In gebouw 2 :
Lot 2 : De handelszaak nr 2 op glvl. CO/REZ/2
Omvattende de commerciële ruimte. N.g.k.i. 1.292€.
Lot 3 : De handelszaak nr 3 op glvl. CO.REZ/3
Omvattende de commerciële ruimte. N.g.k.i. 1.292€.
Lot 4 : De werkplaats nr 2 ATELIER/2
Omvattende de werkplaats. N.g.k.i. 980€.
In gebouw 3 :
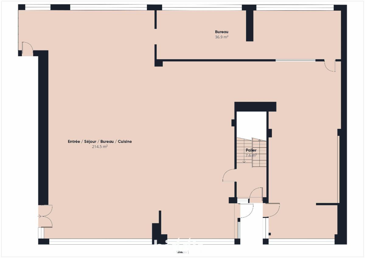
Lot 5 : De werkplaats nr 3 ATELIER/3
Omvattende de werkplaats. N.g.k.i. 980€.
Op de parkeerplaatsen, het manoeuvreerruimte en de groene ruimte, achter de werkplaatsen :
Lot 6 : De parkeerplaats nr P4
N.g.k.i. 24€.
Contr. elektr. niet conform. Gemengd gebied, in een struct. ruimte. Bezoeken : maandagen 17-24/11, 1-8/12 van 10-12u en woensdagen 19-26/11, 3-10/12 van 12u30-14u30.
Begin biedingen : woensdag 03.12.25 om 12u -
Einde biedingen : jeudi 11.12.25 om 12u -
Instelprijs : 950.000€ -
Bodverhoging : 1.000€ -
Ondertekening akte : dinsdag 16.12.25 om 15u -
www.biddit.be - Ref. pand : 285491.

Algemene informatie

  • Vrij vanafAndere
  • PandtypeHandelspanden
  • Kadastraal inkomen6.354 €

Bijkomende informatie

  • Aantal parkeerplaatsen buiten1

Energiegegevens

  • Conformiteitsattest van de elektrische installatieJa, niet gelijkvorming
  • Andere opmerkingenGemengd gebied, in structurerende ruimte

Financiële gegevens

  • Huidig verhuurd percentage100%

Stedelijke informatie

  • Meest recente en meest nauwkeurige wettelijke stedenbouwkundige bestemmingGemengde Gebieden

Documenten en bijlagen

Online verkoop

Doe een bod van

950.000 €

Verkoop informatie

Logo van partner Biddit

Startdatum: 03/12/2025 12:00

Einddatum: 11/12/2025 12:00

Geen bod: 1.000 €

De fiche bekijken op Biddit.be

Verkocht door de notaris VRONINKS, RICKER & WEYTS & SACRÉ - notaires

Bezoekgegevens

maandagen 17-24/11, 1-8/12 van 10-12u en woensdagen 19-26/11, 3-10/12 van 12u30-14u30.

Virtueel bezoek

Ontdek het vastgoed tijdens een virtueel bezoek

Nu bezoeken