Presentatiebeeld van het pand n° 294946

In verband met dit goed

Referentie: 294946


Goed gelegen welonderhouden bel-étage woning met 3 slaapkamers, tuin en gunstig EPC te Merksem, Maantjessteenweg 148.
Thans ten kadaster gekend sectie C, nummer 0121X3P0000, met een oppervlakte van 175 m². Jaar van beëindiging van opbouw: 1965. K.I.: € 1.556,00.
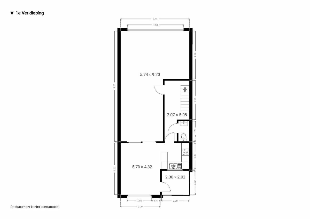
Indeling:
- glv: inkomhal met vestiaire en trap naar 1ste verdiep, garage (ingebouwde kasten), wasplaats, koele berging, tuinkamer, verbindingsgang naar tuin (bergruimte met ingemaakte kasten), tuin met tuinhuisje;
- 1ste verdiep: toilet, geïnstalleerde keuken annex eetkamer en terras, ruime eetkamer/living met ingebouwde open haard;
- 2de verdiep: badkamer (ligbad, toilet, meubel met 2 lavabo’s), grote slaapkamer achteraan annex terrasje, bureel, twee slaapkamers vooraan.
Zeer gunstige ligging en bereikbaarheid. Vlakbij scholen, winkels, openbaar vervoer en invalswegen.
Opgelet: u kan enkel een opschortende voorwaarde voor het bekomen van een financiering inroepen voor maximaal twee weken.
Adviesprijs: € 450.000,00.
Vrij vanaf: bij akte.
BEZOEK: neem contact op met het notariskantoor op 03/233.90.66 of katia.moortgat@deckersnotarissen.be
Gegevens keuringsattesten:
- EK: niet conform AREI
- EPC: 166 kWh/ m² jaar – label B
- Asbest: asbestveilig (maar mogelijk niet asbestvrij) (0 asbestmaterialen – 1 beperking – 0 uitsluitingen)
Niet gelegen in een risicozone voor overstromingen. P- en G-score: C. C = kleine kans op overstromingen.
Stedenbouwkundige gegevens:
1° dat voor het onroerend goed geen stedenbouwkundige vergunning/omgevingsvergunning voor stedenbouwkundige handelingen bekend is BEHOUDENS: oprichten van een woning de dato 22/06/1964.
2° dat de meest recente stedenbouwkundige bestemming van het gebied waarin het onroerend goed gelegen is, is:woongebieden aanvullende voorschriften gp 14: art 1.
3° geen kennis te hebben van enige planbatenheffing.
4° dat het onroerend goed niet het voorwerp uitmaakt van een maatregel als vermeld in titel VI, hoofdstuk III en IV handhavingsdecreet (zijnde een rechterlijke of bestuurlijke maatregel) dan wel of een procedure voor het opleggen van een dergelijke maatregel hangende is en dat het onroerend goed niet het voorwerp uitmaakt van een rechtelijke herstelmaatregel of een bestuurlijke maatregel opgelegd op basis van het ruimtelijke ordeningsrecht, zoals van toepassing voor de inwerkingtreding van artikel 71 en 79 van het decreet van 26 april 2024 tot wijziging van diverse decreten, wat betreft de implementatie van het Kaderdecreet Vlaamse Handhaving van 14 juli 2023, en ook geen procedure voor het opleggen van een dergelijke maatregel hangende is..
5° dat op het onroerend goed geen voorkooprecht rust, zoals bedoeld in artikel 2.4.1 VCRO en zoals bedoeld in artikel 5.2.1 §1 lid 1 7° VCRO.
6° dat voor het onroerend goed geen omgevingsvergunning voor het verkavelen van gronden van toepassing is.
7° dat het onroerend goed niet gelegen is in een risicogebied voor overstromingen.
8° dat het onroerend goed niet het voorwerp uitmaakt van een voorkeursbesluit of een projectbesluit.
9° dat het onroerend goed niet staat vermeld in het register van herstelvorderingen.
Bestuursmaatregelen in het maatregelenregister: nee.
BIEDEN en MEER INFORMATIE te vinden via de BIDDIT-site, gelieve de link https://www.biddit.be/nl/catalog/detail/294946 te gebruiken. G score: C P score: C

Algemene informatie

  • Vrij vanafBij de akte
  • Gebouw1965
  • PandtypeHuizen
  • Kadastraal inkomen1.556 €

Samenstelling

  • 3 slaapkamers
  • 1 badkamer
  • 2 WC
  • Ingerichte keuken
  • Kantoor
  • Eetkamer
  • Washok
  • Woonkamer
  • Aantal open haarden1

Bijkomende informatie

  • Terras
  • Aantal parkeerplaatsen binnen1

Gebouw en tuin gegevens

  • Tuin
  • Oppervlakte kadaster175m2

Energiegegevens

  • Energiescore (kengetal) van het EPC166 kWh/m2
  • RF-Energie labelB
  • Unieke code van het EPC-certificaat20251114-0003733347-RES-2

Stedelijke informatie

  • Stedenbouwkundige vergunning
  • De meest recente stedelijke bestemming van het pand met de benamingen gebruikt in het register met plannenWoongebied

Uit de hand te koop

Adviesprijs

450.000 €

Verkocht door de notaris DECKERS NOTARISSEN

Heeft u een vraag over dit pand of wenst u een bezoek in te plannen? Neem contact op met de notaris van de verkoper.

Bezoekgegevens

neem contact op met het notariskantoor op 03/233.90.66 of katia.moortgat@deckersnotarissen

Virtueel bezoek

Ontdek het vastgoed tijdens een virtueel bezoek

Nu bezoeken