Presentatiebeeld van het pand n° 289035

In verband met dit goed

Referentie: 289035


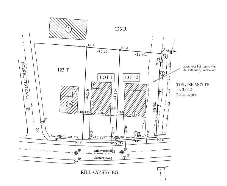
Goed gelegen bouwgrond voor open bebouwing, Rillaarseweg 114A, groot 7a39ca.
Gvg-WgLk-Gmo-Vv-Gvkr. P-score D. P score: D

Algemene informatie

  • Vrij vanafOnmiddellijk
  • PandtypeGronden

Gebouw en tuin gegevens

  • Oppervlakte kadaster739m2

Financiële gegevens

  • Kadastraal inkomen te bepalen

Stedelijke informatie

  • Verkavelingsvergunning
  • De meest recente stedelijke bestemming van het pand met de benamingen gebruikt in het register met plannenWoongebied met landelijk karakter

Online verkoop

Doe een bod van

135.000 €

Verkoop informatie

Afgesloten verkoop
Logo van partner Biddit

Startdatum: 26/11/2025 12:00

Einddatum: 04/12/2025 12:00

Geen bod: 1.000 €

De fiche bekijken op Biddit.be

Verkocht door de notaris Lerut Erik & Lerut Liesbeth

Bezoekgegevens

Vrij te bezichtigen