Presentatiebeeld van het pand n° 294942

In verband met dit goed

Referentie: 294942


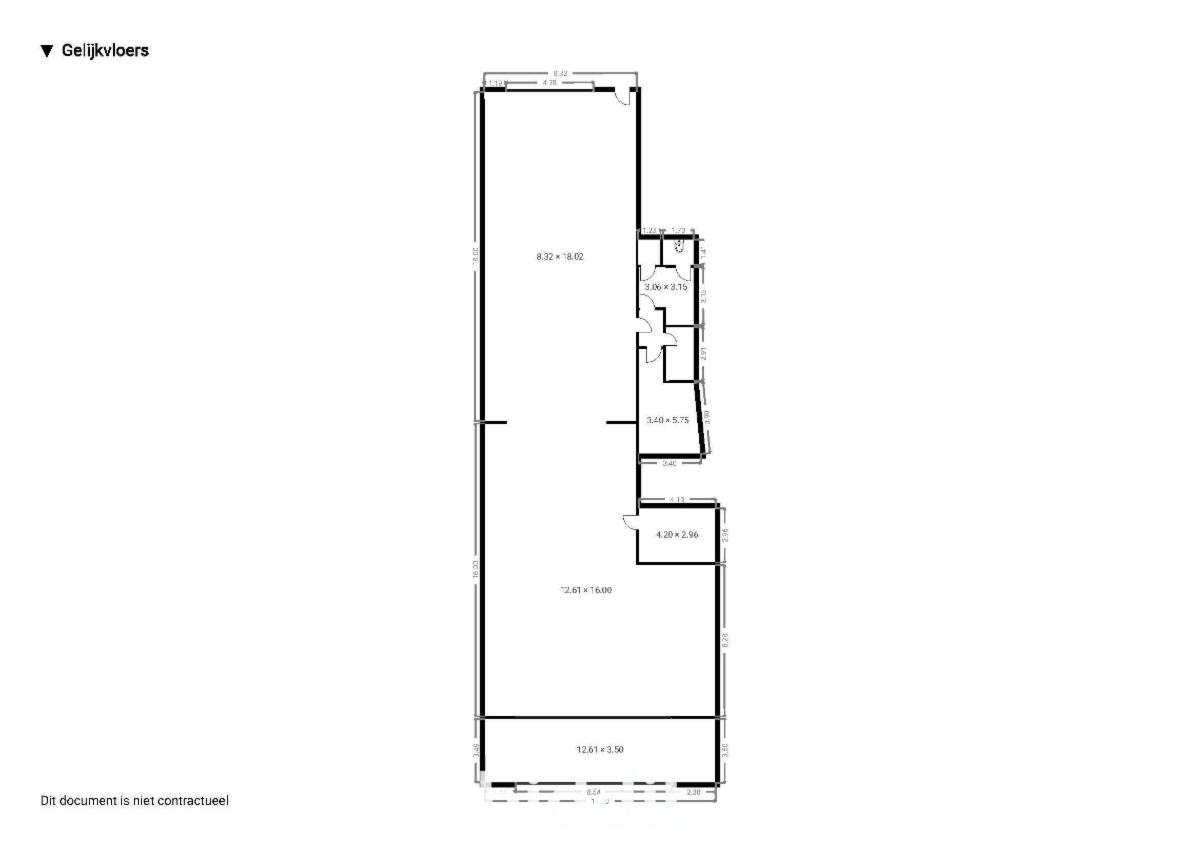
Omvattende: sas, commerciële ruimten, wc, hall, kleedkamer dames met douchekamer, kleedkamer heren met douchekamer, technische ruimte, trappen naar kelderverdieping.
Met 50% van de eenheden in de mede-eigendom. Met uitsluitend genot en gebruik van de tuin achter het appartementsgebouw.
Centrale ligging en grote visibiliteit, ideaal voor diverse activiteiten.
Momenteel vergund als verbruikersruimte (horeca).
De kandidaat-koper wordt verzocht zich vóór het uitbrengen van een bod grondig te informeren, zowel over de aard en de gevolgen van de stedenbouwkundige overtredingen als over de (stedenbouwkundige) mogelijkheden van het pand. In dat kader wordt hij nadrukkelijk aangeraden contact op te nemen met de bevoegde diensten Handhaving en Omgeving van de gemeente Brecht: handhaving@brecht.be en omgeving@brecht.be.
Bestuursmaatregelen in het maatregelenregister: nee. G score: A P score: A

Algemene informatie

  • Vrij vanafOnmiddellijk
  • Gebouw1998
  • PandtypeHandelspanden
  • verdieping(en)1
  • Kadastraal inkomen2.554 €
  • Aantal gevels2

Samenstelling

  • 1 badkamer
  • 1 WC
  • Kelder

Bijkomende informatie

  • StaatGoed

Gebouw en tuin gegevens

  • Tuin
  • Oppervlakte kadaster935m2

Energiegegevens

  • RF-Energie labelD
  • Unieke code van het EPC-certificaat20211123-0002495259-KNR-1

Stedelijke informatie

  • Stedenbouwkundige vergunning
  • De meest recente stedelijke bestemming van het pand met de benamingen gebruikt in het register met plannenWoongebied

Online verkoop

Doe een bod van

221.000 €

Verkoop informatie

Logo van partner Biddit

Startdatum: 06/05/2026 11:00

Einddatum: 14/05/2026 11:00

Geen bod: 1.000 €

De fiche bekijken op Biddit.be

Verkocht door de notaris Notariskantoor Huygens & Lefevre

Bezoekgegevens

zonder afspraak op woensdag 29/4, 6/5, 13/5 van 15u-17u en op zaterdag 25/4, 2/5, 9/5 van 12u-14u.

Virtueel bezoek

Ontdek het vastgoed tijdens een virtueel bezoek

Nu bezoeken