Presentatiebeeld van het pand n° 292214

In verband met dit goed

Referentie: 292214


Een villa
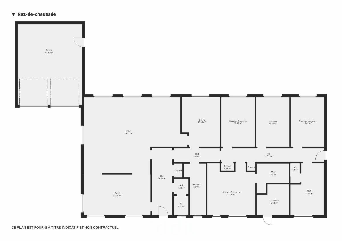
gelegen Prins Van Oranjelaan 33/A, opp. 13a 64ca. Omvattende : hall, woonruimte met o.h., keuken, bureau, 3 slaapkamers, dressing, 2 badkamers, 2 wc, washok, dubbele garage, buitenparking voor 3 auto’s, terras, tuin. N.g.k.i. 5.270€. Vrij van gebruik. Woongebied met residentieel karakter. EPC : G/428. Contr. elektr.. niet conform. Bezoekdagen : maandag 23/2, 2/3 en 9/3/26 van 10-12u en zaterdag 28/2, 7/3 en 14/3/26 van 11u30-13u30.
Begin biedingen : maandag 09.03.26 om 13u -
Einde biedingen : dinsdag 17.03.26 om 13u -
Instelprijs : 690.000€ -
Bodverhoging : 1.000€ -
Ondertekening akte : dinsdag 24.03.26 om 14u -
www.biddit.be - Ref. pand : 292214.

Algemene informatie

  • Vrij vanafBij de akte
  • PandtypeHuizen
  • Kadastraal inkomen5.270 €

Samenstelling

  • 3 slaapkamers
  • 2 badkamers
  • 2 WC
  • Dressing
  • Ingerichte keuken
  • Kantoor
  • Washok
  • Woonkamer
  • Aantal open haarden1

Bijkomende informatie

  • Terras
  • Aantal parkeerplaatsen binnen2
  • Aantal parkeerplaatsen buiten3

Gebouw en tuin gegevens

  • Tuin
  • Oppervlakte kadaster1364m2

Energiegegevens

  • RBC-Energie labelG
  • Conformiteitsattest van de elektrische installatieJa, niet gelijkvorming
  • Unieke code van het EPC-certificaat20250910-0000726895-01-9
  • Primair specifiek energieverbruik428 kWh/m2/an

Stedelijke informatie

  • Meest recente en meest nauwkeurige wettelijke stedenbouwkundige bestemmingWoongebieden met residentieel karakter

Online verkoop

Doe een bod van

690.000 €

Verkoop informatie

Afgesloten verkoop
Logo van partner Biddit

Startdatum: 09/03/2026 13:00

Einddatum: 17/03/2026 13:00

Geen bod: 1.000 €

De fiche bekijken op Biddit.be

Verkocht door de notaris Corinne Dupont et Hélène Desenfans, notaires associées

Bezoekgegevens

maandag 23/2, 2/3 en 9/3/26 van 10-12u en zaterdag 28/2, 7/3 en 14/3/26 van 11u30-13u30.

Virtueel bezoek

Ontdek het vastgoed tijdens een virtueel bezoek

Nu bezoeken