Presentatiebeeld van het pand n° 290958

In verband met dit goed

Referentie: 290958


Een woonhuis met tuin
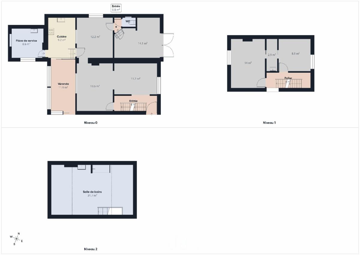
Gelegen Hoogstraat 88 met een oppervlakte van 9a 56ca 6 tma. Omvattende 3 slaapkamers. N.g.k.i. 823€. Vrij van gebruik. Woongebied, niet geklasseerd. Recht van Voorkoop krachtens de Vlaamse Wooncode. Overstromingsrapport : 23/10/2025 : Informatie voor het volledige perceel : perceelscore of P-Score : A - Gebouwenscore of G-score : A. Asbestinventarisattest code UC : 20251013-000397-000 dd 13/10/2025 : eindconclusie : Niet-asbestveilig - 2 Asbestmaterialen verwijderen - 1 asbestmateriaal zorgvuldig beheren. EPC F/598. Bezoeken (vanaf 6/1/2026) : dinsdag van 10-12u en zaterdag van 9-11u.
Infosessie : donderdag 15.01.26 om 9u30 -
Begin biedingen : dinsdag 27.01.26 om 11u -
Einde biedingen : woensdag 04.02.26 om 11u -
Instelprijs : 290.000€ -
Bodverhoging : 1.000€ -
Ondertekening akte : woensdag 11.02.26 om 15u op kantoor van de notaris -
www.biddit.be - Ref. pand : 290958.

Algemene informatie

  • Vrij vanafBij de akte
  • PandtypeHuizen
  • Kadastraal inkomen823 €

Samenstelling

  • 3 slaapkamers

Gebouw en tuin gegevens

  • Tuin
  • Oppervlakte kadaster95606m2

Energiegegevens

  • Energiescore (kengetal) van het EPC598 kWh/m2
  • RF-Energie labelF De wettelijke verplichting tot renovatie is mogelijks van toepassing op dit goed.
  • Conformiteitsattest van de elektrische installatieJa, niet gelijkvorming
  • Unieke code van het EPC-certificaat20251205-0003703484-RES-1

Financiële gegevens

  • Recht van voorkoop RUP

Stedelijke informatie

  • De meest recente stedelijke bestemming van het pand met de benamingen gebruikt in het register met plannenZone d'habitation/Woongebied

Online verkoop

Doe een bod van

290.000 €

Verkoop informatie

Logo van partner Biddit

Startdatum: 27/01/2026 11:00

Einddatum: 04/02/2026 11:00

Geen bod: 1.000 €

De fiche bekijken op Biddit.be

Verkocht door de notaris Véronique BONEHILL et Laurent WETS, Notaires Associés

Bezoekgegevens

(vanaf 6/1/2026) : dinsdag van 10-12u en zaterdag van 9-11u.

Virtueel bezoek

Ontdek het vastgoed tijdens een virtueel bezoek

Nu bezoeken

Infosessie

donderdag 15 januari 2026 om 9u30 op kantoor van de notaris