Presentatiebeeld van het pand n° 294446

In verband met dit goed

Referentie: 294446


VERKOOP VIA BIEDING ONDER GESLOTEN OMSLAG - OCMW van Turnhout zal verkopen uit de hand volgens de procedure van BIEDING ONDER GESLOTEN OMSLAG:
ERFPACHTRECHT VAN DE WONING MET TUIN TE TURNHOUT, BEGIJNHOF 75
MINIMUMBOD: 58.500 EUR
Kenmerk: Een woonhuis op en met grond en alle verdere aanhorigheden gestaan en gelegen te Turnhout, Begijnhof 75, sectie Q deel van nr 0639B P0000 met een grondoppervlakte van 3a 19ca.
KI 292 €.
Maandelijkse canon: 370 €.
De woning is geklasseerd als monument en het Begijnhof is in zijn geheel UNESCO-werelderfgoed en erkend en geklasseerd als Landschap.
Gelegen deels in Wg en deels in Wche; Vg; Gmo.; Gvv.; Gvkr.
EPC: 760 kWh/m² label F (certificaatnr 20220730-0002648218-RES-1).
Indeling:
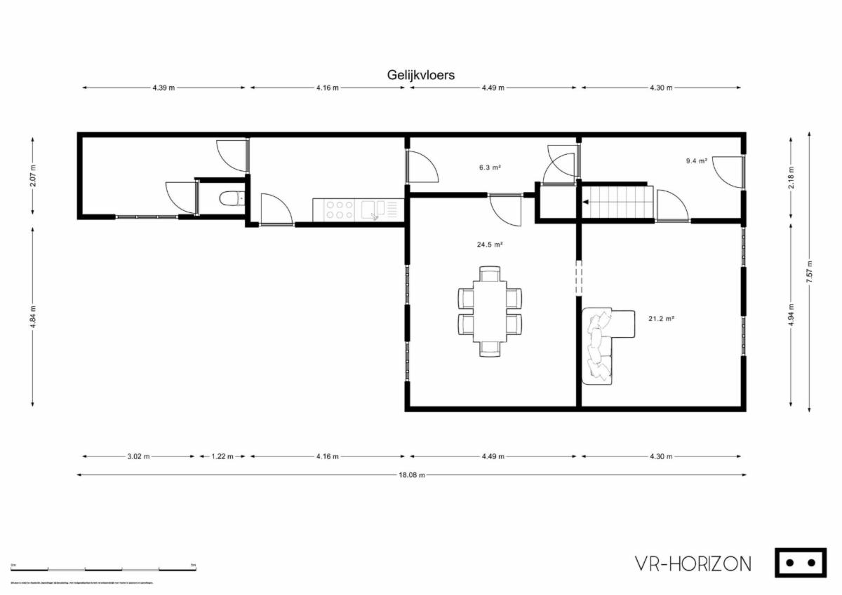
GLVS: inkom-traphal, living, eetkamer, gang, keuken, badkamer, tuin met tuinberging.
Eerste verdieping: gang, 3 slaapkamers, badkamer, keuken, 2 bergingen.
Tweede verdieping: Zolderruimte.
Tevens kelder.
Om meer te weten omtrent de aktekosten dient u contact op te nemen met het notariaat aangezien de "rekenmodule" niet van toepassing is bij erfpachten.
Beschikbaar: Vanaf het verlijden van de notariële akte.
BEZOEK: ter plaatse op zaterdagen 18/4 en 25/4 van 10u-12u of na telefonische afspraak met Tine Meeus op nummer 0471/67.16.63 of tine.meeus@turnhout.be.
Bieding: Het ondertekende aankoopaanbod met de verkoopsvoorwaarden moet bij wijze van aangetekende zending of afgifte tegen ontvangstbewijs op het notariskantoor worden bezorgd onder gesloten omslag op het kantoor van Szabó notarissen te Turnhout, Kempenlaan 2 ten laatste op MAANDAG 27 APRIL 2026 VÓÓR 12U.
Opening van de biedingen: 27 APRIL 2026 OM 14.00 UUR op het kantoor Szabó Notarissen te Turnhout.
Aankoopaanbod en verkoopsvoorwaarden te verkrijgen via aanvraag op johnny@szabonotarissen.be of tine.meeus@turnhout.be, of in het kantoor van Szabó Notarissen te Turnhout, Kempenlaan 2. G score: C P score: C

Algemene informatie

  • Vrij vanafBij de akte
  • PandtypeHuizen
  • verdieping(en)2
  • Kadastraal inkomen292 €
  • Aantal gevels2

Samenstelling

  • 3 slaapkamers
  • 2 badkamers
  • 1 WC
  • Zolder
  • Kelder
  • Eetkamer
  • Woonkamer

Bijkomende informatie

  • StaatTe renoveren
  • Type verwarmingGas

Gebouw en tuin gegevens

  • Tuin
  • Oppervlakte kadaster319m2

Energiegegevens

  • Energiescore (kengetal) van het EPC760 kWh/m2
  • RF-Energie labelF De wettelijke verplichting tot renovatie is mogelijks van toepassing op dit goed.
  • Unieke code van het EPC-certificaat20220730-0002648218-RES-1

Stedelijke informatie

  • Stedenbouwkundige vergunning
  • De meest recente stedelijke bestemming van het pand met de benamingen gebruikt in het register met plannenDeels woongebied en deels woongebied met een culturele, historische en/of esthetische waarde

Naam van de voorkooprechthebbende overheid (bij prioriteit)

  • Het onroerend goed is beschermd of opgenomen in een vastgestelde inventarisAndere
  • Ander type van inventarisgeklasseerd als monument en het Begijnhof is in zijn geheel UNESCO-werelderfgoed en erkend en geklasseerd als Landschap.

Uit de hand te koop

Bieden vanaf

58.500 €

Verkocht door de notaris SZABO notarissen

Heeft u een vraag over dit pand of wenst u een bezoek in te plannen? Neem contact op met de notaris van de verkoper.

Bezoekgegevens

ter plaatse op zaterdagen 18/4 en 25/4 van 10u-12u of na telefonische afspraak met Tine Meeus op nummer 0471/67.16.63 of tine.meeus@turnhout.be.

Virtueel bezoek

Ontdek het vastgoed tijdens een virtueel bezoek

Nu bezoeken