Presentatiebeeld van het pand n° 292007

In verband met dit goed

Referentie: 292007


Ideaal gelegen in het centrum van Turnhout, op wandelafstand van winkels, scholen en openbaar vervoer. De woning biedt een verrassend ruime indeling met tal van mogelijkheden om ze volledig naar eigen smaak in te richten.
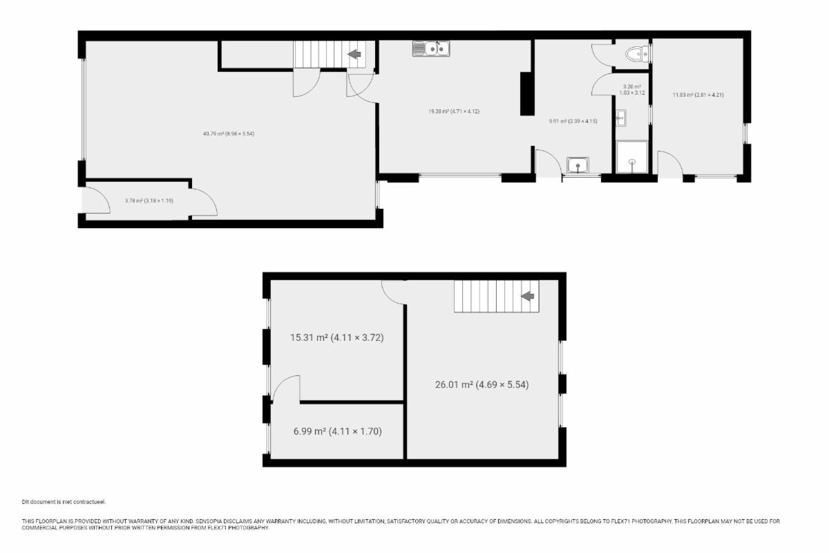
Op het gelijkvloers bevindt zich een aangename woonkamer met trap naar de kelder en de eerste verdieping, een functionele keuken met aangrenzende berging, een douchekamer met lavabo en douche, en een apart toilet. Vanuit de tuin is er bovendien toegang tot een extra berging, wat zorgt voor extra praktisch comfort.
De eerste verdieping telt momenteel twee volwaardige slaapkamers en biedt de mogelijkheid om een derde slaapkamer, bureau of dressing te creëren — volledig aanpasbaar aan uw woonwensen.
Via een vaste trap bereikt u de tweede verdieping (zolderverdieping), die eveneens tal van mogelijkheden biedt. Deze ruimte kan perfect worden ingericht als extra slaapkamer, bureau of hobbyruimte.
De tuin is een fijne buitenruimte die nog kan worden opgefrist en zo kan uitgroeien tot een gezellige stadstuin waar u heerlijk kan ontspannen.
Kortom, een woning met potentieel op een topligging, ideaal voor wie graag zijn eigen stempel wil drukken op zijn toekomstige thuis.
BIEDEN en MEER INFORMATIE te vinden via de BIDDIT-site, gelieve de link https://www.biddit.be/nl/catalog/detail/292007 te gebruiken. G score: A P score: A

Algemene informatie

  • Vrij vanafBij de akte
  • Gebouw1969
  • PandtypeHuizen
  • verdieping(en)3
  • Oppervlakte van het woongedeelte186m2
  • Kadastraal inkomen770 €
  • Aantal gevels2

Samenstelling

  • 2 slaapkamers
  • 1 badkamer
  • 1 WC
  • Zolder
  • Kelder
  • Woonkamer
  • Zolder toegankelijk via vaste trap

Bijkomende informatie

  • Type verwarmingGas

Gebouw en tuin gegevens

  • Tuin
  • Oppervlakte kadaster315m2

Energiegegevens

  • Energiescore (kengetal) van het EPC237 kWh/m2
  • RF-Energie labelC
  • Unieke code van het EPC-certificaat20250320-0003558367-RES-1

Stedelijke informatie

  • De meest recente stedelijke bestemming van het pand met de benamingen gebruikt in het register met plannenWoongebied

Uit de hand te koop

Gewenste prijs

310.000 €

Verkocht door de notaris Van Haeren & Van Durme notarissen

Heeft u een vraag over dit pand of wenst u een bezoek in te plannen? Neem contact op met de notaris van de verkoper.

Virtueel bezoek

Ontdek het vastgoed tijdens een virtueel bezoek

Nu bezoeken