Presentatiebeeld van het pand n° 294809

In verband met dit goed

Referentie: 294809


Op te frissen.
Indeling:
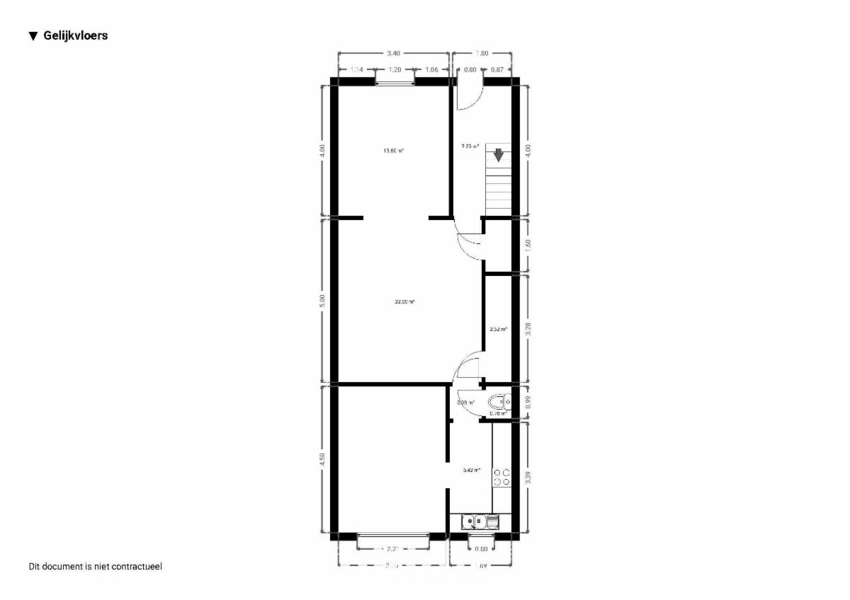
- gelijkvloers: inkomhal met trap, toegang naar de kelder, 2 dooreenlopende woonkamers (waarvan 1 als slaapkamer of bureau kan dienen), bergkast, sas, aparte wc, keuken, eetplaats, tuin met terras en tuinberging;
- 1e verdieping: overloop, 2 slaapkamers, wasplaats met douche, badkamer (ligbad, 2 lavabo's, wc), 3e slaapkamer bereikbaar via de badkamer. G score: A P score: A

Algemene informatie

  • Vrij vanafBij de akte
  • Gebouw1945
  • PandtypeHuizen
  • verdieping(en)2
  • Oppervlakte van het woongedeelte152m2
  • Kadastraal inkomen676 €
  • Aantal gevels2

Samenstelling

  • 4 slaapkamers
  • 2 badkamers
  • 2 WC
  • Kelder
  • Eetkamer
  • Woonkamer

Bijkomende informatie

  • Terras
  • StaatOp te frissen
  • Type verwarmingGas

Gebouw en tuin gegevens

  • Tuin
  • Oppervlakte kadaster191m2

Energiegegevens

  • Energiescore (kengetal) van het EPC367 kWh/m2
  • RF-Energie labelD
  • Unieke code van het EPC-certificaat20250705-0003641133-RES-1

Stedelijke informatie

  • De meest recente stedelijke bestemming van het pand met de benamingen gebruikt in het register met plannenWoongebied

Online verkoop

Doe een bod van

210.000 €

Verkoop informatie

Logo van partner Biddit

Startdatum: 04/05/2026 14:00

Einddatum: 12/05/2026 14:00

Geen bod: 1.000 €

De fiche bekijken op Biddit.be

Verkocht door de notaris STUDIE DE BAECKER & HEYDE

Bezoekgegevens

elke woensdag van 14u-16u en elke zaterdag van 10u-12u30 vanaf 8/4 t.e.m. 2/5.

Virtueel bezoek

Ontdek het vastgoed tijdens een virtueel bezoek

Nu bezoeken