Presentatiebeeld van het pand n° 289236

In verband met dit goed

Referentie: 289236


In een gebouw gelegen Stuart Merrilllaan 44
Het appartement « lot 1 » op glvl.
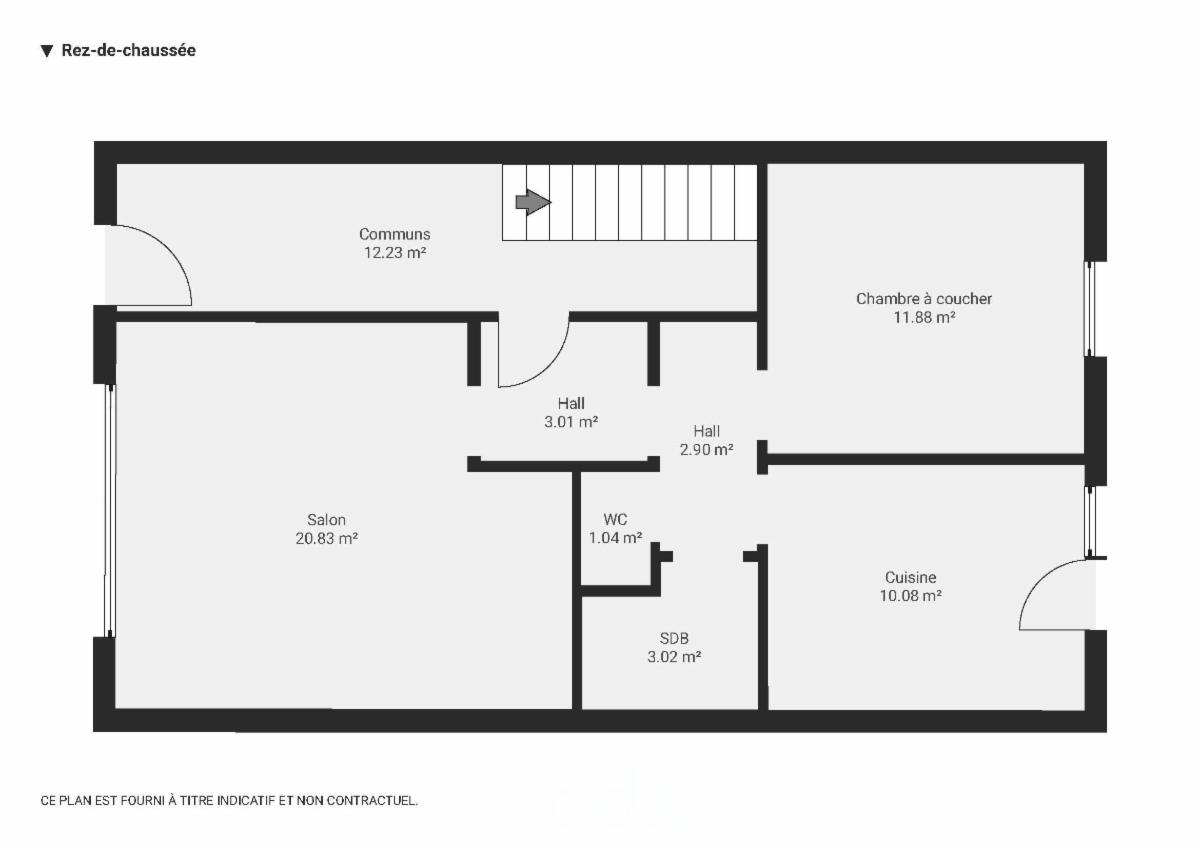
Omvattende inkomhal, living, slaapkamer, badkamer, wc, keuken met gasketel, terras, tuin en kelder nr 5 op ondergr. verd. Verhuurd 480€/m. EPC F/322. Contr. elektr. niet conform. Woongebied met residentieel karakter. Bezoeken : dinsdagen 11-18-25/11, 2/12 van 11u tot 13u en vrijdagen 14-21-28/11, 5/12 van 17u tot 19u.
Begin biedingen : maandag 01.12.25 om 13u -
Einde biedingen : dinsdag 09.12.25 om 13u -
Instelprijs : 120.000€ -
Bodverhoging : 1.000€ -
Ondertekening akte : woensdag 17.12.25 om 14u -
www.biddit.be - Ref. pand : 289236.
Mogelijkheid van massaverkoop van het ganse gebouw zie ref. 289353.

Algemene informatie

  • Vrij vanafAndere
  • PandtypeAppartementen

Samenstelling

  • 1 slaapkamer
  • 1 badkamer
  • 1 WC
  • Kelder
  • Ingerichte keuken
  • Woonkamer

Bijkomende informatie

  • Terras

Gebouw en tuin gegevens

  • Tuin

Energiegegevens

  • RBC-Energie labelF
  • Conformiteitsattest van de elektrische installatieJa, niet gelijkvorming
  • Unieke code van het EPC-certificaat20240919-0000690763-01-5
  • Primair specifiek energieverbruik322 kWh/m2/an

Financiële gegevens

  • Kadastraal inkomen te bepalen
  • Huidig verhuurd percentage100%

Stedelijke informatie

  • Meest recente en meest nauwkeurige wettelijke stedenbouwkundige bestemmingWoongebieden met residentieel karakter

Online verkoop

Doe een bod van

120.000 €

Verkoop informatie

Afgesloten verkoop
Logo van partner Biddit

Startdatum: 01/12/2025 13:00

Einddatum: 09/12/2025 13:00

Geen bod: 1.000 €

De fiche bekijken op Biddit.be

Verkocht door de notaris Jean MARTROYE de JOLY & Quentin DE RUYDTS, Notaires associés

Bezoekgegevens

dinsdagen 11-18-25/11, 2/12 van 11u tot 13u en vrijdagen 14-21-28/11, 5/12 van 17u tot 19u.

Virtueel bezoek

Ontdek het vastgoed tijdens een virtueel bezoek

Nu bezoeken