Presentatiebeeld van het pand n° 289138

In verband met dit goed

Referentie: 289138


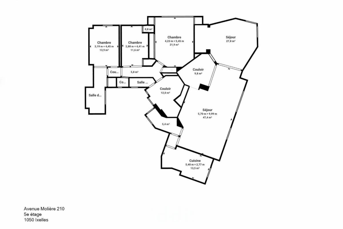
In een appartementsgebouw gelegen Molièrelaan 208
Het appartement op 5e verd.
Omvattende inkomhal, doorloop, rokersruimte, salon, eetplaats, doorloop met directe toegang tot de trappenhal, wc, 2 slaapkamers met lavabo, bureau, badkamer, terras, 2 kelders op ondergr. verd. Bew. opp. +/- 210 m². Op de 7e verd. 2 meidkamers « C17 ». Garage nr 4 gelegen Joseph Stallaertstraat. N.g.k.i. 2.478€. Vrij van gebruik. Woongebied, GCHEWS. EPC D/172. Contr. elektr. niet conform. Bezoeken : zaterdagen 8-15-22-29/11 van 9-11u en maandagen 10-17-24/11, 1/12 van 10-12u.
Begin biedingen : woensdag 26.11.25 om 13u -
Einde biedingen : donderdag 04.12.25 om 13u -
Instelprijs : 892.500€ -
Bodverhoging : 1.000€ -
Ondertekening akte : dinsdag 09.12.25 om 11u -
www.biddit.be - Ref. pand : 289138.

Algemene informatie

  • Vrij vanafBij de akte
  • PandtypeAppartementen
  • Oppervlakte van het woongedeelte210m2
  • Kadastraal inkomen2.478 €

Samenstelling

  • 2 slaapkamers
  • 1 badkamer
  • 1 WC
  • Kelder
  • Kantoor
  • Eetkamer
  • Woonkamer

Bijkomende informatie

  • Terras
  • Verdieping van het goed5
  • Aantal parkeerplaatsen binnen1

Energiegegevens

  • RBC-Energie labelD
  • Conformiteitsattest van de elektrische installatieJa, niet gelijkvorming
  • Unieke code van het EPC-certificaat20251020-0000731476-01-8
  • Primair specifiek energieverbruik172 kWh/m2/an

Stedelijke informatie

  • Meest recente en meest nauwkeurige wettelijke stedenbouwkundige bestemmingTypische woongebieden

Online verkoop

Doe een bod van

892.500 €

Verkoop informatie

Afgesloten verkoop
Logo van partner Biddit

Startdatum: 26/11/2025 13:00

Einddatum: 04/12/2025 13:00

Geen bod: 1.000 €

De fiche bekijken op Biddit.be

Verkocht door de notaris Corinne Dupont et Hélène Desenfans, notaires associées

Bezoekgegevens

zaterdagen 8-15-22-29/11 van 9-11u en maandagen 10-17-24/11, 1/12 van 10-12u.

Virtueel bezoek

Ontdek het vastgoed tijdens een virtueel bezoek

Nu bezoeken