Presentatiebeeld van het pand n° 291381

In verband met dit goed

Referentie: 291381


Spacieuse maison unifamiliale située dans un quartier calme et agréable d’Andrimont, à proximité des commodités.
Composition du bien :
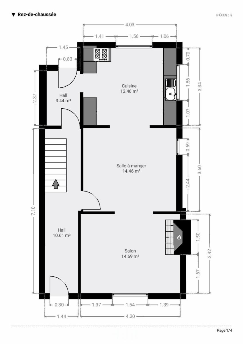
- Au rez-de-chaussée : hall d’entrée et bel espace de vie lumineux comprenant une cuisine équipée (sans lave-vaisselle) ouverte qui donne sur la salle à manger et le salon ;
- Au premier étage : hall, petit bureau, deux chambres à coucher et une salle de bains avec douche, évier et WC ;
- Au deuxième étage : hall, bureau, deux chambres à coucher dont une avec accès à une belle terrasse en toiture d’environ 13,5 m².
Le bien se complète de :
- trois caves et une chaufferie en sous-sol ;
- un garage et
- un jardin.
Située dans un quartier calme et proche des commodités.
Très beau potentiel pour une famille ou un projet de rénovation dans un environnement paisible et proche des facilités.
Châssis double vitrage
PEB : F.
Electricité non conforme

Algemene informatie

  • Vrij vanafBij de akte
  • PandtypeHuizen
  • Kadastraal inkomen830 €
  • Aantal gevels3

Samenstelling

  • 4 slaapkamers
  • 1 douchekamer
  • 2 WC
  • Kelder
  • Ingerichte keuken
  • Kantoor
  • Eetkamer
  • Woonkamer
  • Oppervlakte slaapkamer 112m2
  • Oppervlakte slaapkamer 223m2
  • Oppervlakte slaapkamer 313m2
  • Oppervlakte slaapkamer 415m2
  • Oppervlakte keuken13m2
  • Oppervlakte eetzaal14m2
  • Oppervlakte woonkamer15m2
  • Oppervlakte bureel7m2
  • Aantal wooneenheden1

Bijkomende informatie

  • Terras
  • StaatOp te frissen
  • Type verwarmingGas

Gebouw en tuin gegevens

  • Tuin
  • Oppervlakte kadaster286m2
  • Oppervlakte terras14m2

Energiegegevens

  • Dubbele beglazing
  • Energie labelEnergielabel van het pand
  • Unieke code van het EPC-certificaat20250704016671
  • Primair specifiek energieverbruik451 kWh/m2/an
  • Primair theoretisch energieverbruik79.844 kWh/an

Stedelijke informatie

  • Stedenbouwkundige vergunning
  • Meest recente stedenbouwkundige bestemmingWoongebied
  • Datum stedenbouwkundige vergunning09/02/1981
  • Nr. stedenbouwkundige vergunning7/1981

Naam van de voorkooprechthebbende overheid (bij prioriteit)

  • Ingeschreven op de bewaar- of beschermingslijst erfgoedNeen

Online verkoop

Doe een bod van

140.000 €

Verkoop informatie

Afgesloten verkoop
Logo van partner Biddit

Startdatum: 16/02/2026 15:00

Einddatum: 24/02/2026 15:00

Geen bod: 1.000 €

De fiche bekijken op Biddit.be

Verkocht door de notaris Renaud CHAUVIN & Baudouin TRISTANT - Société notariale

Bezoekgegevens

Sur rendez-vous avec l'Etude au 087/33.04.60

Infosessie

Sur rendez-vous avec l'Etude au 087/33.04.60