Presentatiebeeld van het pand n° 290748

In verband met dit goed

Referentie: 290748


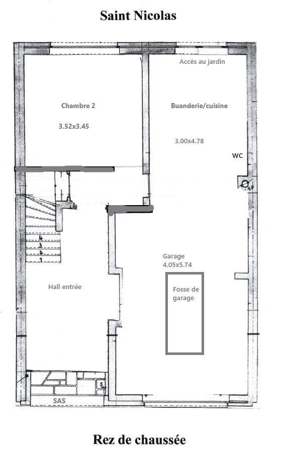
Jolie maison bel-étage récemment rénovée, située sur les hauteurs de Saint-Nicolas et dans une rue calme en cul-de-sac, proche des commerces et facilités. Au rez-de-chaussée : un hall d'entrée, un garage (avec porte sectionnelle motorisée), une buanderie avec accès au jardin, et une chambre de 13 m². Au premier étage, un hall menant à : un séjour de 24 m², une cuisine équipée de 10 m², une chambre de 13 m² avec dressing, une salle de bains et une salle de douche avec WC. Sous-sol : une cave. Extérieurs : un joli petit jardin et deux terrasses.
Equipements : chauffage central au gaz, châssis en PVC double vitrage avec volets électriques, citerne d'eau de pluie (raccordée au WC). PEB : D. Installation électrique conforme.
Opportunité à ne pas rater - à découvrir rapidement !
Visites sur rendez-vous en appelant l'étude au 04/234.73.11 entre 9h et 16h30 et en dehors de ces heures, au 0471/23.38.58.

Algemene informatie

  • Vrij vanafBij de akte
  • PandtypeHuizen
  • verdieping(en)1
  • Oppervlakte van het woongedeelte159m2
  • Kadastraal inkomen956 €
  • Aantal gevels2

Samenstelling

  • 2 slaapkamers
  • 1 badkamer
  • 1 douchekamer
  • Ingerichte keuken
  • Washok
  • Woonkamer
  • Oppervlakte slaapkamer 113m2
  • Oppervlakte slaapkamer 213m2
  • Oppervlakte keuken10m2
  • Oppervlakte woonkamer24m2
  • Aantal wooneenheden1

Bijkomende informatie

  • Teledistributie
  • Terras
  • OmgevingStedelijk
  • StaatGoed
  • Type verwarmingGas
  • Aantal parkeerplaatsen binnen1
  • Aantal parkeerplaatsen buiten1

Gebouw en tuin gegevens

  • Tuin
  • Oppervlakte kadaster215m2

Faciliteit gegevens

  • Nabijgelegen bus
  • Nabijgelegen winkels
  • Scholen
  • Autoweg

Energiegegevens

  • Aansluiting aan de riolering
  • Centrale verwarming
  • Dubbele beglazing
  • Energie labelEnergielabel van het pand
  • Conformiteitsattest van de elektrische installatieJa, gelijkvorming
  • Unieke code van het EPC-certificaat20241030009718
  • Primair specifiek energieverbruik266 kWh/m2/an
  • Primair theoretisch energieverbruik42.290 kWh/an

Stedelijke informatie

  • Meest recente stedenbouwkundige bestemmingWoongebied

Naam van de voorkooprechthebbende overheid (bij prioriteit)

  • Ingeschreven op de bewaar- of beschermingslijst erfgoedNeen

Uit de hand te koop

Gewenste prijs

299.000 €

Verkocht door de notaris ADVENTILL, société notariale

Heeft u een vraag over dit pand of wenst u een bezoek in te plannen? Neem contact op met de notaris van de verkoper.

Bezoekgegevens

Sur rendez-vous au 04/234.73.11