Presentatiebeeld van het pand n° 288577

In verband met dit goed

Referentie: 288577


OFFRE ACTUELLE : 167.500€

Cette maison 4 façades se compose comme suit :

Sous-sol : 1 cave.

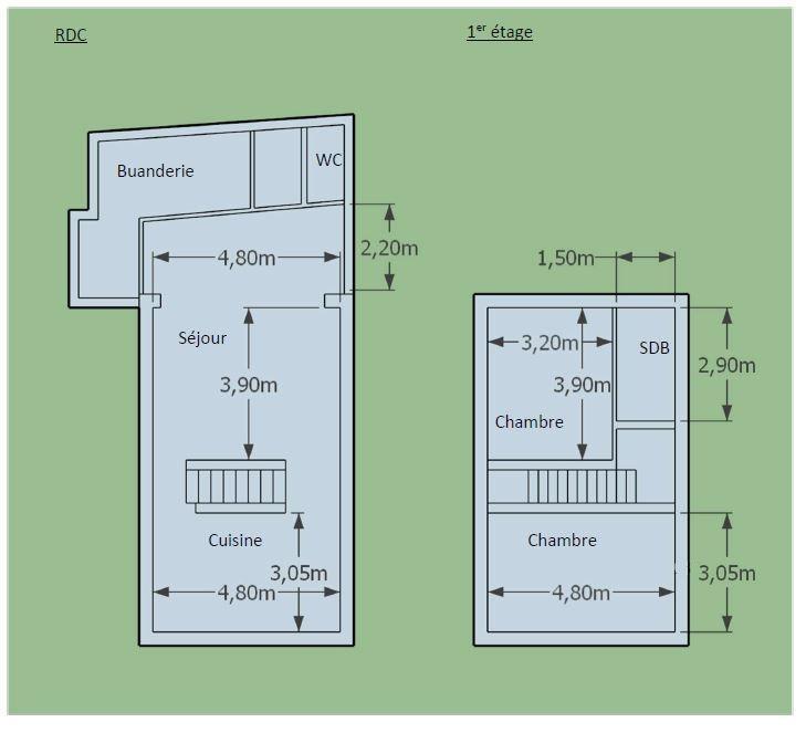
Rez-de-chaussée : une cuisine (+/- 14,6m²), un séjour (+/- 29,3m²), une buanderie et un wc séparé.

1er étage : un hall de nuit, 2 chambres (+/- 12,5 et +/- 14,6m²) et une salle de bains (+/- 4,4m²).

Grenier : combles de rangement.

Extérieur : une cour/jardinet ouvert (non clôturé) sur le côté gauche de la maison.

Divers :
- Libre à l'acte
- Châssis DV
- Chauffage central au gaz
- Superficie habitable : +/- 100m²
- Revenu cadastral non indexé : 312€
- Superficie du terrain : 1a 69ca
- PEB : E / Consommation spécifique d’énergie primaire : 422 kWh/m².an
- Electricité : installation conforme jusqu'en 2030.

Visites sur rendez-vous et renseignements au 0470/99.77.13

Algemene informatie

  • Vrij vanafBij de akte
  • Gebouw1957
  • PandtypeHuizen
  • Oppervlakte van het woongedeelte100m2
  • Kadastraal inkomen312 €
  • Aantal gevels4

Samenstelling

  • 2 slaapkamers
  • 1 badkamer
  • 2 WC
  • Zolder
  • Zolder toegankelijk via vaste trap
  • Geïsoleerde zolder
  • Oppervlakte slaapkamer 113m2
  • Oppervlakte slaapkamer 215m2

Bijkomende informatie

  • Type verwarmingGas

Gebouw en tuin gegevens

  • Tuin
  • Oppervlakte kadaster169m2

Energiegegevens

  • Aansluiting aan de riolering
  • Centrale verwarming
  • Dubbele beglazing
  • Energie labelEnergielabel van het pand
  • Conformiteitsattest van de elektrische installatieJa, gelijkvorming
  • Unieke code van het EPC-certificaat20251008020889
  • Primair specifiek energieverbruik422 kWh/m2/an
  • Primair theoretisch energieverbruik55.093 kWh/an

Stedelijke informatie

  • Meest recente stedenbouwkundige bestemmingWoongebied

Uit de hand te koop

Bieden vanaf

170.000 €

Verkocht door de notaris Notaires DUPUIS et Associés

Heeft u een vraag over dit pand of wenst u een bezoek in te plannen? Neem contact op met de notaris van de verkoper.

Bezoekgegevens

Visites sur rendez-vous au 0470/99.77.13