Presentatiebeeld van het pand n° 290540

In verband met dit goed

Referentie: 290540


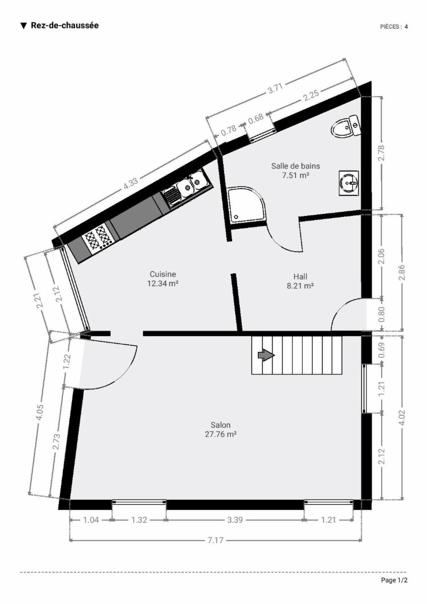
Maison située à Chenée.
Elle est composée :
- Au rez-de-chaussée : d'un hall d'entrée, d'une salle de bains, d'une cuisine et d'un salon
- Au premier étage : d'un hall et de trois chambres à coucher

Algemene informatie

  • Vrij vanafBij de akte
  • Gebouw1900
  • PandtypeHuizen
  • Oppervlakte van het woongedeelte105m2
  • Kadastraal inkomen336 €
  • Aantal gevels4

Samenstelling

  • 3 slaapkamers
  • 1 badkamer
  • Woonkamer
  • Oppervlakte slaapkamer 127m2
  • Oppervlakte slaapkamer 29m2
  • Oppervlakte slaapkamer 318m2
  • Oppervlakte woonkamer28m2
  • Aantal wooneenheden1

Bijkomende informatie

  • StaatTe renoveren

Gebouw en tuin gegevens

  • Tuin

Energiegegevens

  • Energie labelEnergielabel van het pand
  • Unieke code van het EPC-certificaat20251126012271
  • Primair specifiek energieverbruik496 kWh/m2/an
  • Primair theoretisch energieverbruik51.924 kWh/an

Stedelijke informatie

  • Verkoop onderworpen aan toelating
  • Meest recente stedenbouwkundige bestemmingWoongebied

Naam van de voorkooprechthebbende overheid (bij prioriteit)

  • Ingeschreven op de bewaar- of beschermingslijst erfgoedNeen

Uit de hand te koop

Gewenste prijs

90.000 €

Verkocht door de notaris Pierre GOVERS & Emilie GILLET - Notaires associés

Heeft u een vraag over dit pand of wenst u een bezoek in te plannen? Neem contact op met de notaris van de verkoper.

Bezoekgegevens

Les visites auront lieu uniquement sur rendez-vous par téléphone au numéro suivant: 04/361.85.33 (à l'exception des mercredi et vendredi après-midi, l'étude étant sur répondeur) ou par e-mail à l'adresse coline.antoine.182659@belnot.be

Virtueel bezoek

Ontdek het vastgoed tijdens een virtueel bezoek

Nu bezoeken