Presentatiebeeld van het pand n° 295288

In verband met dit goed

Referentie: 295288


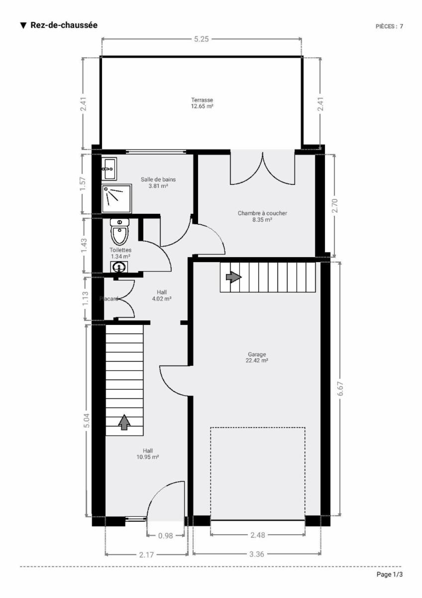
Maison mitoyenne bel-étage avec jardin située à Embourg (bas) dans une rue calme, proche de toutes commodités. RDC: hall d'entrée, 1 chambre avec terrasse, salle de bains, garage. ETAGE: 1 chambre, cuisine, salon-salle à manger avec terrasse; SOUS-SOL: caves. EXTERIEUR : Jardin à l'arrière, un garage et emplacement de parking à l'avant.

Algemene informatie

  • Vrij vanafBij de akte
  • Gebouw1959
  • PandtypeHuizen
  • verdieping(en)1
  • Oppervlakte van het woongedeelte184m2
  • Kadastraal inkomen763 €
  • Aantal gevels2

Samenstelling

  • 2 slaapkamers
  • 1 badkamer
  • 1 WC
  • Kelder
  • Eetkamer
  • Woonkamer
  • Aantal wooneenheden1

Bijkomende informatie

  • Terras
  • OmgevingResidentieel
  • StaatOp te frissen
  • Type verwarmingMazout
  • Aantal parkeerplaatsen binnen1
  • Aantal parkeerplaatsen buiten1

Gebouw en tuin gegevens

  • Tuin
  • Oppervlakte kadaster186m2

Faciliteit gegevens

  • Nabijgelegen bus
  • Nabijgelegen trein/station
  • Nabijgelegen winkels
  • Scholen
  • Autoweg

Energiegegevens

  • Centrale verwarming
  • Dubbele beglazing
  • Stookolie-, gas- of andere tank
  • Energie labelEnergielabel van het pand
  • Milieuverklaring of milieuvergunningNeen, want niet nodig
  • Conformiteitsattest van de elektrische installatieJa, niet gelijkvorming
  • Unieke code van het EPC-certificaat20260310006572
  • Primair specifiek energieverbruik220 kWh/m2/an
  • Primair theoretisch energieverbruik40.380 kWh/an
  • Conformiteitsattest van de stookolietankNeen, want niet nodig

Stedelijke informatie

  • Stedenbouwkundige vergunning
  • Meest recente stedenbouwkundige bestemmingWoongebied
  • Datum stedenbouwkundige vergunning08/07/1985
  • Nr. stedenbouwkundige vergunning85/1556

Naam van de voorkooprechthebbende overheid (bij prioriteit)

  • Ingeschreven op de bewaar- of beschermingslijst erfgoedNeen

Uit de hand te koop

Gewenste prijs

165.000 €

Verkocht door de notaris ETUDE NOTARIALE DE CHENEE - Société Notariale

Heeft u een vraag over dit pand of wenst u een bezoek in te plannen? Neem contact op met de notaris van de verkoper.

Bezoekgegevens

Visites uniquement sur rendez-vous par téléphone au numéro suivant : 04/367.54.33 (à l'exception du mercredi et du vendredi après-midi, l'étude étant sur répondeur) ou par e-mail à l'adresse suivante : hugo.beckers.182659@belnot.be