Presentatiebeeld van het pand n° 295229

In verband met dit goed

Referentie: 295229


Maison 4 façades avec potentiel de rénovation

Située au cœur du paisible village de Muno, dans la région de Florenville et à proximité immédiate de la vallée de la Semois, cette maison 4 façades séduira les amateurs de tranquillité et de nature.

Ce bien se distingue avant tout par son environnement calme, son implantation en quatre façades et le potentiel qu’il offre après rénovation, dans un cadre naturel particulièrement recherché.

La maison se compose comme suit :
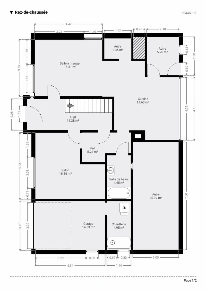
- Au rez-de-chaussée : Un hall, salle à manger, cuisine, salon, salle de bain, garage et chaufferie
- Au 1er étage : Un hall de nuit, bureau et 4 chambres.

Le bien dispose également d'un grand jardin qui entoure la propriété.
Aspects techniques :
- Chauffage central au mazout ;
- Citerne de 1.500 litres ;
- PEB : G ;
- Electricité : à rénover complétement

Pour en savoir plus ou pour organiser une visite, contactez-nous au 061/31.16.95

Algemene informatie

  • Vrij vanafBij de akte
  • Gebouw1947
  • PandtypeHuizen
  • Kadastraal inkomen497 €
  • Aantal gevels4

Samenstelling

  • 4 slaapkamers
  • 1 badkamer
  • 1 WC
  • Oppervlakte slaapkamer 111m2
  • Oppervlakte slaapkamer 212m2
  • Oppervlakte slaapkamer 313m2
  • Oppervlakte slaapkamer 414m2

Bijkomende informatie

  • Teledistributie
  • OmgevingLandelijk
  • StaatTe renoveren
  • Type verwarmingMazout

Gebouw en tuin gegevens

  • Tuin
  • Vlakke grond

Faciliteit gegevens

  • Nabijgelegen bus
  • Nabijgelegen trein/station
  • Nabijgelegen winkels
  • Scholen

Energiegegevens

  • Aansluiting aan de riolering
  • Centrale verwarming
  • Stookolie-, gas- of andere tank
  • Energie labelEnergielabel van het pand
  • Milieuverklaring of milieuvergunningNeen
  • Conformiteitsattest van de elektrische installatieNeen
  • Unieke code van het EPC-certificaat20260224029136
  • Primair specifiek energieverbruik707 kWh/m2/an
  • Primair theoretisch energieverbruik118.654 kWh/an
  • Conformiteitsattest van de stookolietankNeen

Stedelijke informatie

  • Meest recente stedenbouwkundige bestemmingWoongebied met landelijk karakter

Naam van de voorkooprechthebbende overheid (bij prioriteit)

  • Ingeschreven op de bewaar- of beschermingslijst erfgoedNeen

Online verkoop

Doe een bod van

80.000 €

Verkoop informatie

Logo van partner Biddit

Startdatum: 01/06/2026 12:00

Einddatum: 09/06/2026 12:00

Geen bod: 1.000 €

De fiche bekijken op Biddit.be

Verkocht door de notaris NotFlo, notaires associés

Bezoekgegevens

Pour tous renseignements et visites, prendre contact avec l'étude