Presentatiebeeld van het pand n° 289291

In verband met dit goed

Referentie: 289291


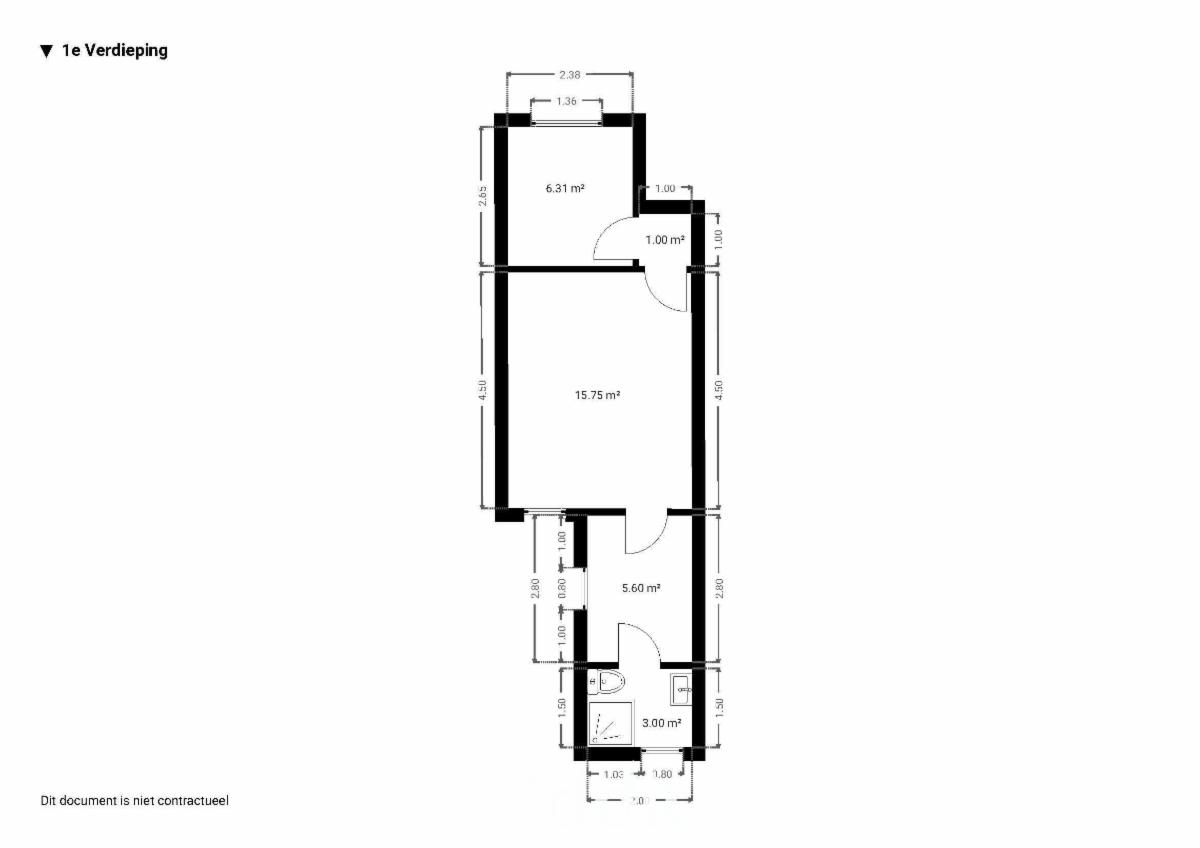
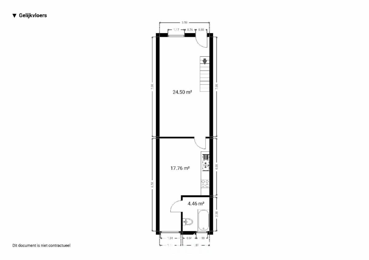
Indeling:
- gelijkvloers: leefruimte, keuken met eetplaats, badkamer met bad en toilet, tuin met berging;
- eerste verdieping: 2 slaapkamers waarvan 1 met badkamer.
EPC D: geen renovatieplicht.
Wg, Gvg, Gmo, Gvkr, Gvv.
BEZOEK: Op afspraak. Gelieve het kantoor te contacteren. G score: D P score: D

Algemene informatie

  • Vrij vanafAndere
  • PandtypeHuizen
  • verdieping(en)1
  • Kadastraal inkomen418 €
  • Aantal gevels2

Samenstelling

  • 2 slaapkamers
  • 2 badkamers
  • 1 WC
  • Eetkamer
  • Woonkamer

Bijkomende informatie

  • StaatOp te frissen

Gebouw en tuin gegevens

  • Tuin
  • Oppervlakte kadaster80m2

Energiegegevens

  • Energiescore (kengetal) van het EPC382 kWh/m2
  • RF-Energie labelD
  • Unieke code van het EPC-certificaat20200921-000231756-RES-1

Stedelijke informatie

  • De meest recente stedelijke bestemming van het pand met de benamingen gebruikt in het register met plannenWoongebied

Online verkoop

Doe een bod van

165.000 €

Verkoop informatie

Logo van partner Biddit

Startdatum: 26/11/2025 11:00

Einddatum: 04/12/2025 11:00

Geen bod: 1.000 €

De fiche bekijken op Biddit.be

Verkocht door de notaris Yves De Vil & Tanja Cupers, geassocieerde notarissen

Bezoekgegevens

Op afspraak. Gelieve het kantoor te contacteren.

Virtueel bezoek

Ontdek het vastgoed tijdens een virtueel bezoek

Nu bezoeken