Presentatiebeeld van het pand n° 291027

In verband met dit goed

Referentie: 291027


Deze charmante eengezinswoning, gelegen aan de Borsbeekstraat in het centrum van Borgerhout, biedt een uitgelezen kans voor wie op zoek is naar een leuk renovatieproject.
Op het gelijkvloers treft u een ruime inkomhal die toegang biedt tot de verschillende vertrekken zoals de ruime woonkamer met veel lichtinval licht, keuken, een berging en een apart toilet, en douchekamer.
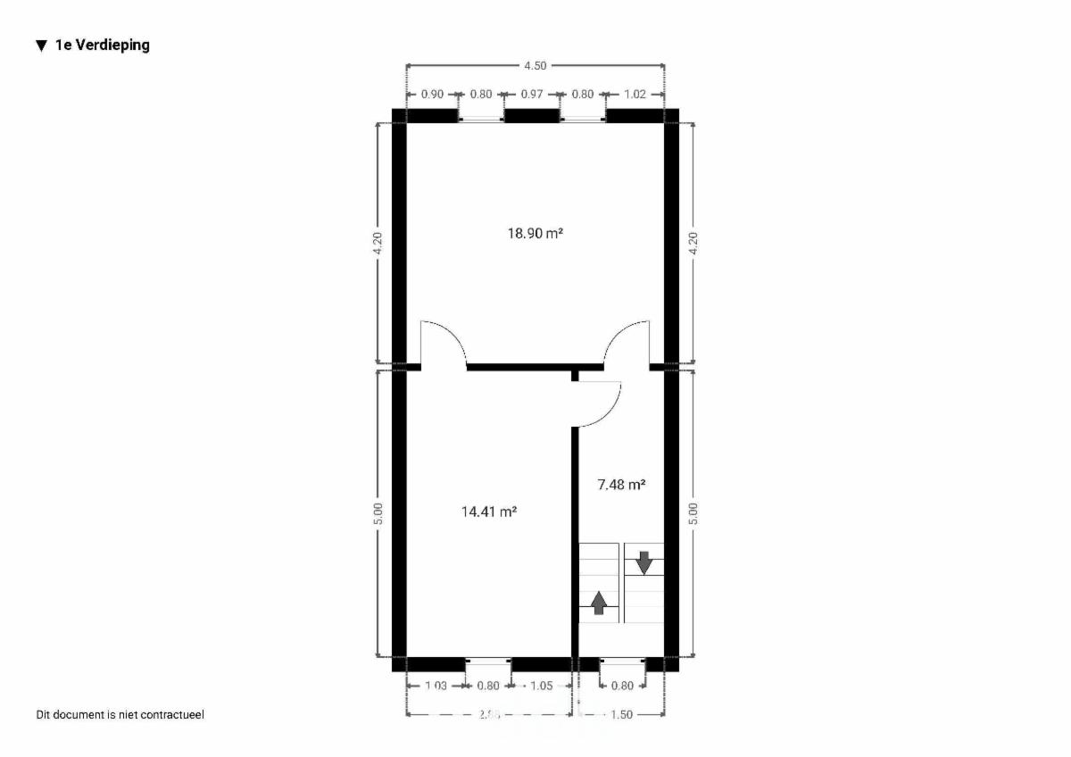
Op de eerste verdieping bevinden zich twee ruime slaapkamers, beide met veel lichtinval.
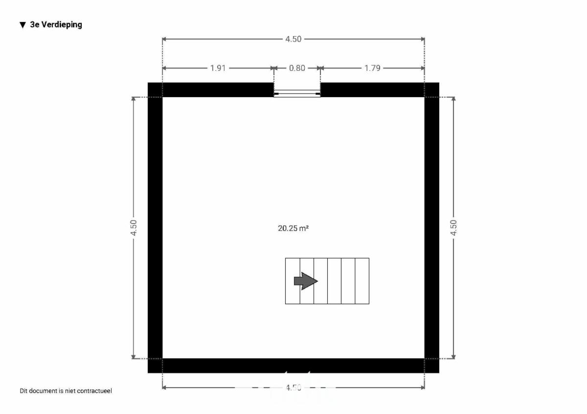
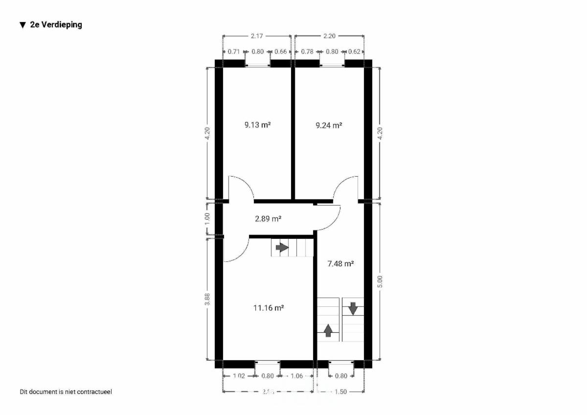
Op de tweede verdieping vinden we nog 2 kamers en een grote badkamer met natuurlijk licht. De zolder is bereikbaar via een vaste trap en kan eventueel worden omgebouwd tot een extra kamer, zoals een extra slaapkamer, kantoor of hobbyruimte.
De achtertuin, met een zuidwestelijke oriëntatie, is verwilderd, maar kan makkelijk omgetoverd worden tot een leuke stadstuin.
EK niet conform; geen renovatieplicht; gunstig EPC met label C.
BEZOEK: na afspraak met het notariskantoor. G score: D P score: D

Algemene informatie

  • Vrij vanafBij de akte
  • PandtypeHuizen
  • verdieping(en)3
  • Kadastraal inkomen495 €
  • Aantal gevels2

Samenstelling

  • 4 slaapkamers
  • 2 badkamers
  • 1 WC
  • Zolder
  • Woonkamer
  • Zolder toegankelijk via vaste trap

Bijkomende informatie

  • StaatTe renoveren

Gebouw en tuin gegevens

  • Tuin
  • Oppervlakte kadaster155m2
  • Oriëntatie tuinZW

Energiegegevens

  • Energiescore (kengetal) van het EPC255 kWh/m2
  • RF-Energie labelC
  • Unieke code van het EPC-certificaat20250601-0003614832-RES-1

Stedelijke informatie

  • De meest recente stedelijke bestemming van het pand met de benamingen gebruikt in het register met plannenWoongebied

Online verkoop

Doe een bod van

179.000 €

Verkoop informatie

Afgesloten verkoop
Logo van partner Biddit

Startdatum: 17/02/2026 11:00

Einddatum: 25/02/2026 11:00

Geen bod: 1.000 €

De fiche bekijken op Biddit.be

Verkocht door de notaris Yves De Vil & Tanja Cupers, geassocieerde notarissen

Bezoekgegevens

na afspraak met het notariskantoor.

Virtueel bezoek

Ontdek het vastgoed tijdens een virtueel bezoek

Nu bezoeken