Presentatiebeeld van het pand n° 290246

In verband met dit goed

Referentie: 290246


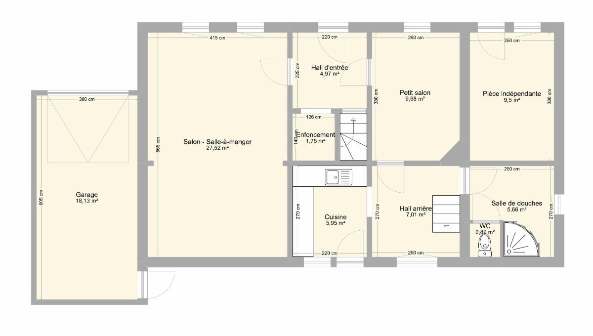
Très jolie maison 4 façades offrant une superficie habitable de +/- 180m²; Au sous-sol, petite cave; Au rez, séjour, hall d'entrée, cuisine équipée, petit salon, salle-de-douche, WC séparé et bureau; A l'étage, hall de nuit, 4 chambres, 1 bureau et une salle-de-bains. Le jardin est d'une superficie de +/- 09 ares 73 centiares. Faire offre à partir de 220.000€ (PEB n°20251019002284, 102091 kWh/an et 568 kWh/m².an; lettre G)

Algemene informatie

  • Vrij vanafOnmiddellijk
  • PandtypeHuizen
  • verdieping(en)1
  • Oppervlakte van het woongedeelte180m2
  • Kadastraal inkomen416 €
  • Aantal gevels4

Samenstelling

  • 4 slaapkamers
  • 2 badkamers
  • 2 WC

Bijkomende informatie

  • Type verwarmingMazout

Gebouw en tuin gegevens

  • Oppervlakte kadaster973m2

Energiegegevens

  • Centrale verwarming
  • Energie labelEnergielabel van het pand
  • Unieke code van het EPC-certificaat20251019002284
  • Primair specifiek energieverbruik568 kWh/m2/an
  • Primair theoretisch energieverbruik102.091 kWh/an

Stedelijke informatie

  • Meest recente stedenbouwkundige bestemmingWoongebied met landelijk karakter

Naam van de voorkooprechthebbende overheid (bij prioriteit)

  • Ingeschreven op de bewaar- of beschermingslijst erfgoedNeen

Uit de hand te koop

Bieden vanaf

220.000 €

Verkocht door de notaris DECLAIRFAYT Antoine & Anne, notaires associés

Heeft u een vraag over dit pand of wenst u een bezoek in te plannen? Neem contact op met de notaris van de verkoper.

Virtueel bezoek

Ontdek het vastgoed tijdens een virtueel bezoek

Nu bezoeken