Presentatiebeeld van het pand n° 289899

In verband met dit goed

Referentie: 289899


Te renoveren halfopen bebouwing, gelegen in gezellige stadswijk. Veel parkeergelegenheid in de buurt. Gelegen nabij het stadscentrum, belangrijke invalswegen, speelplein, scholen, winkels,...
De woning is samengesteld als volgt:
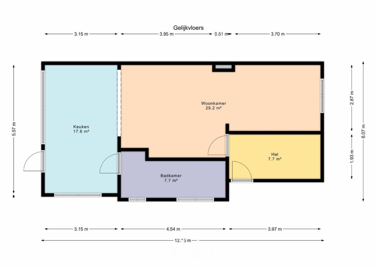
* Gelijkvloers:
- Inkomhal met trap
- Badkamer
- Leefruimte
- Keuken
- koer
* Eerste verdieping:
- Nachthal
- Slaapkamer 1
- Slaapkamer 2
- Slaapkamer 3
* Tweede verdieping :
- 2 slaapkamers
G score: C P score: C

Algemene informatie

  • Vrij vanafBij de akte
  • PandtypeHuizen
  • verdieping(en)3
  • Kadastraal inkomen493 €
  • Aantal gevels3

Samenstelling

  • 5 slaapkamers
  • 1 badkamer
  • 1 WC
  • Woonkamer

Bijkomende informatie

  • OmgevingStedelijk
  • StaatTe renoveren

Gebouw en tuin gegevens

  • Oppervlakte kadaster120m2

Faciliteit gegevens

  • Nabijgelegen winkels
  • Scholen
  • Autoweg

Energiegegevens

  • Energiescore (kengetal) van het EPC722 kWh/m2
  • RF-Energie labelF De wettelijke verplichting tot renovatie is mogelijks van toepassing op dit goed.
  • Unieke code van het EPC-certificaat20250623-0003609470-RES-3

Stedelijke informatie

  • Stedenbouwkundige vergunning
  • De meest recente stedelijke bestemming van het pand met de benamingen gebruikt in het register met plannenWoongebied

Online verkoop

Doe een bod van

95.000 €

Verkoop informatie

Afgesloten verkoop
Logo van partner Biddit

Startdatum: 26/11/2025 14:00

Einddatum: 04/12/2025 14:00

Geen bod: 1.000 €

De fiche bekijken op Biddit.be

Verkocht door de notaris Notaris Astrid Dobbels

Bezoekgegevens

Elke woensdagnamiddag van 17u45 tot 18u45 en elke zaterdag van 15u15 tot 16u15. Dit vanaf 8 november. Let op: geen bezoekdag op 22 november.

Virtueel bezoek

Ontdek het vastgoed tijdens een virtueel bezoek

Nu bezoeken