Presentatiebeeld van het pand n° 287523

In verband met dit goed

Referentie: 287523


Te renoveren.
Open bebouwing met zuid gerichte tuin, 3 slaapkamers, veranda aangebouwd in 2009.
Gelegen in rustige woonstraat, goede verbinding met winkels, sport, scholen.
Wg, Vg, Gmo, Gvkr, Gvv. Renovatieplicht.
BEZOEK: op zaterdag van 10u-12u vanaf zaterdag 20/9 tem zaterdag 18/10. G score: A P score: C

Algemene informatie

  • Vrij vanafBij de akte
  • Gebouw1965
  • PandtypeHuizen
  • verdieping(en)1
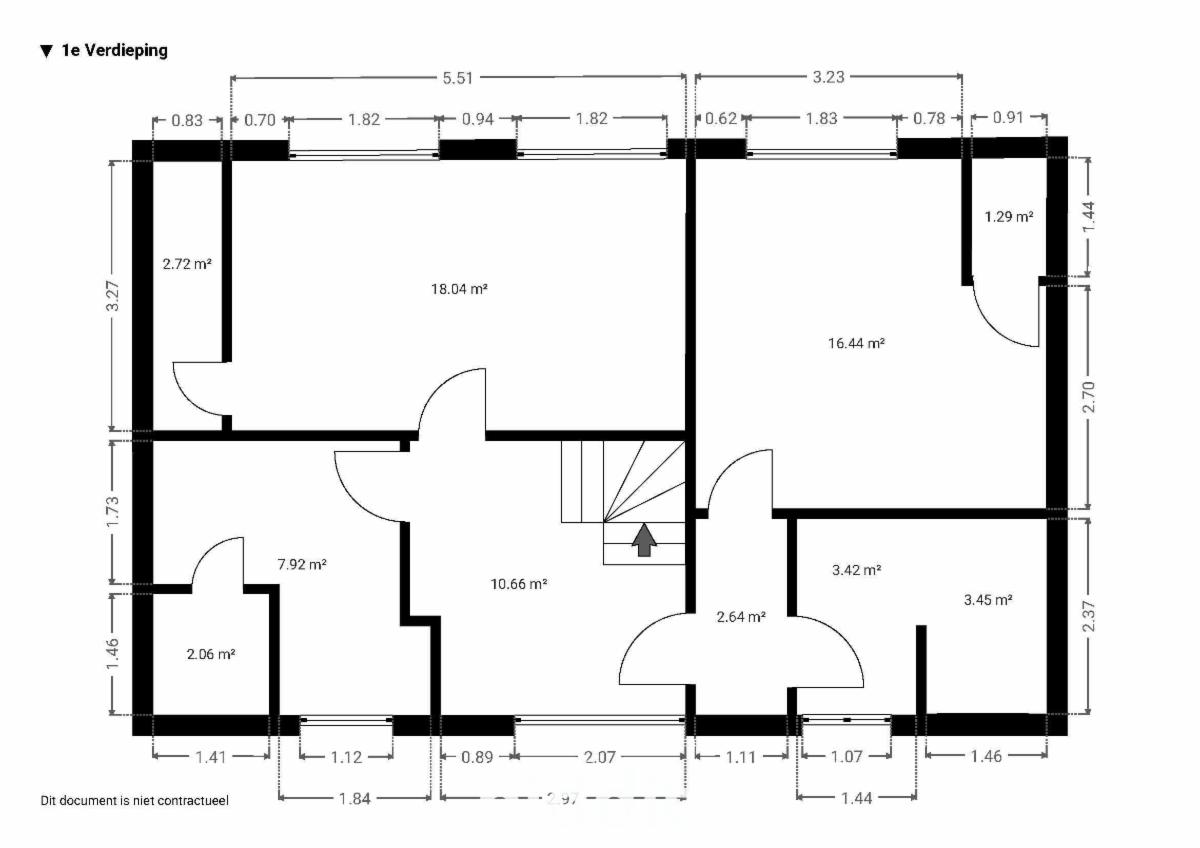
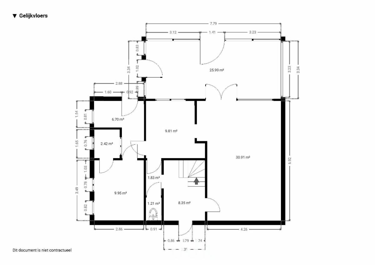
  • Oppervlakte van het woongedeelte187m2
  • Kadastraal inkomen2.087 €
  • Aantal gevels4

Samenstelling

  • 3 slaapkamers
  • 1 badkamer
  • 1 WC
  • Veranda

Bijkomende informatie

  • StaatTe renoveren
  • Type verwarmingGas
  • Aantal parkeerplaatsen binnen1

Gebouw en tuin gegevens

  • Tuin
  • Oppervlakte kadaster749m2
  • Oriëntatie tuinZ

Energiegegevens

  • Energiescore (kengetal) van het EPC531 kWh/m2
  • RF-Energie labelF De wettelijke verplichting tot renovatie is mogelijks van toepassing op dit goed.
  • Unieke code van het EPC-certificaat20250810-0003662051-RES-1

Stedelijke informatie

  • Stedenbouwkundige vergunning
  • De meest recente stedelijke bestemming van het pand met de benamingen gebruikt in het register met plannenWoongebied

Online verkoop

Doe een bod van

470.000 €

Verkoop informatie

Logo van partner Biddit

Startdatum: 14/10/2025 14:00

Einddatum: 22/10/2025 14:00

Geen bod: 1.000 €

De fiche bekijken op Biddit.be

Verkocht door de notaris LIBRIS Notarissen

Bezoekgegevens

op zaterdag van 10u-12u vanaf zaterdag 20/9 tem zaterdag 18/10.

Virtueel bezoek

Ontdek het vastgoed tijdens een virtueel bezoek

Nu bezoeken