Presentatiebeeld van het pand n° 285181

In verband met dit goed

Referentie: 285181


Très bel immeuble de bureaux, idéalement situé, entre la Rue Féronstrée et Quai de la Goffe (Quai de Batte). Cet immeuble est situé à proximité de toutes les commodités, notamment de la nouvelle ligne du tram.
Parking public à proximité (Interparking Saint Georges) - possibilité de location au mois au prix indicatif de 140 euros.

Il est composé :
-au sous-sol: de quatre caves, de trois toilettes, de deux salles de bain, d'une chaufferie ainsi que d'une pièce,
-au rez-de-chaussée: d'un hall d'entrée, d'une cuisine, de quatre bureaux d'une superficie d'environ 10m², d'un bureau d'une superficie de 17.51m²,
-au 1er étage: d'un hall, d'une toilette, d'un bureau de 7m², de deux bureaux d'environ 10m², d'un grand bureau de 40m²,
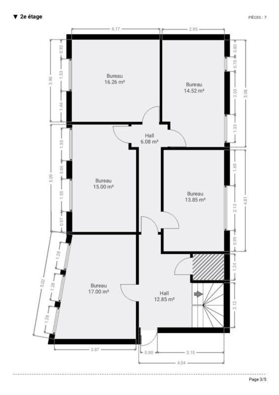
-au 2ème étage: d'un hall, de cinq bureaux d'environ 15m²,
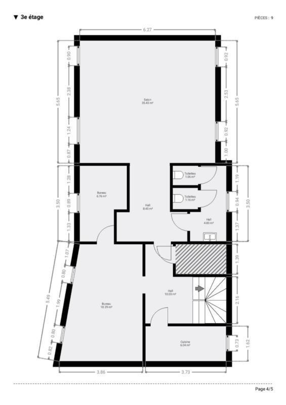
-au 3ème étage: d'un hall, de deux toilettes, d'une cuisine, d'un petit bureau d'environ 7m², d'un bureau d'environ 18m² et d'un grand salon de 35m²

!! Une société aura le droit de maintenir son siège dans l'immeuble ainsi que sa boite aux lettres, avec possibilité pour elle de venir relever son courrier.

Pour plus d'informations et/ou une visite, n'hésitez pas à nous contacter au 04/367.54.33

Plans 2D disponibles en annexes.

Cet immeuble est repris dans l’inventaire du patrimoine immobilier culturel (nature du bien : monument).

Algemene informatie

  • Vrij vanafBij de akte
  • PandtypeKantoren
  • verdieping(en)3
  • Kadastraal inkomen11.155 €
  • Aantal gevels2

Samenstelling

  • 2 badkamers
  • 6 WC
  • Kelder
  • Ingerichte keuken
  • Oppervlakte keuken9m2
  • Oppervlakte kelder52m2

Bijkomende informatie

  • Type verwarmingGas

Gebouw en tuin gegevens

  • Oppervlakte kadaster125m2

Faciliteit gegevens

  • Nabijgelegen bus
  • Nabijgelegen tram
  • Nabijgelegen winkels
  • Scholen

Energiegegevens

  • Centrale verwarming

Stedelijke informatie

  • Stedenbouwkundige vergunning
  • Verkoop onderworpen aan toelating
  • Meest recente stedenbouwkundige bestemmingWoongebied
  • Datum stedenbouwkundige vergunning26/09/1991
  • Nr. stedenbouwkundige vergunning59877

Naam van de voorkooprechthebbende overheid (bij prioriteit)

  • Ingeschreven op de bewaar- of beschermingslijst erfgoedJa

Uit de hand te koop

Bieden vanaf

510.000 €

Verkocht door de notaris ETUDE NOTARIALE DE CHENEE - Société Notariale

Heeft u een vraag over dit pand of wenst u een bezoek in te plannen? Neem contact op met de notaris van de verkoper.

Bezoekgegevens

Les visites auront lieu uniquement sur rendez-vous par téléphone au numéro suivant: 04/367.54.33 (à l'exception des mercredi et vendredi après-midi, l'étude étant sur répondeur) ou par e-mail à l'adresse coline.antoine.182659@belnot.be

Virtueel bezoek

Ontdek het vastgoed tijdens een virtueel bezoek

Nu bezoeken