De 26 foto's tonen.
De woning is gelegen nabij scholen, winkels en met een goede bereikbaarheid via de E19. De totale oppervlakte is 5929m².
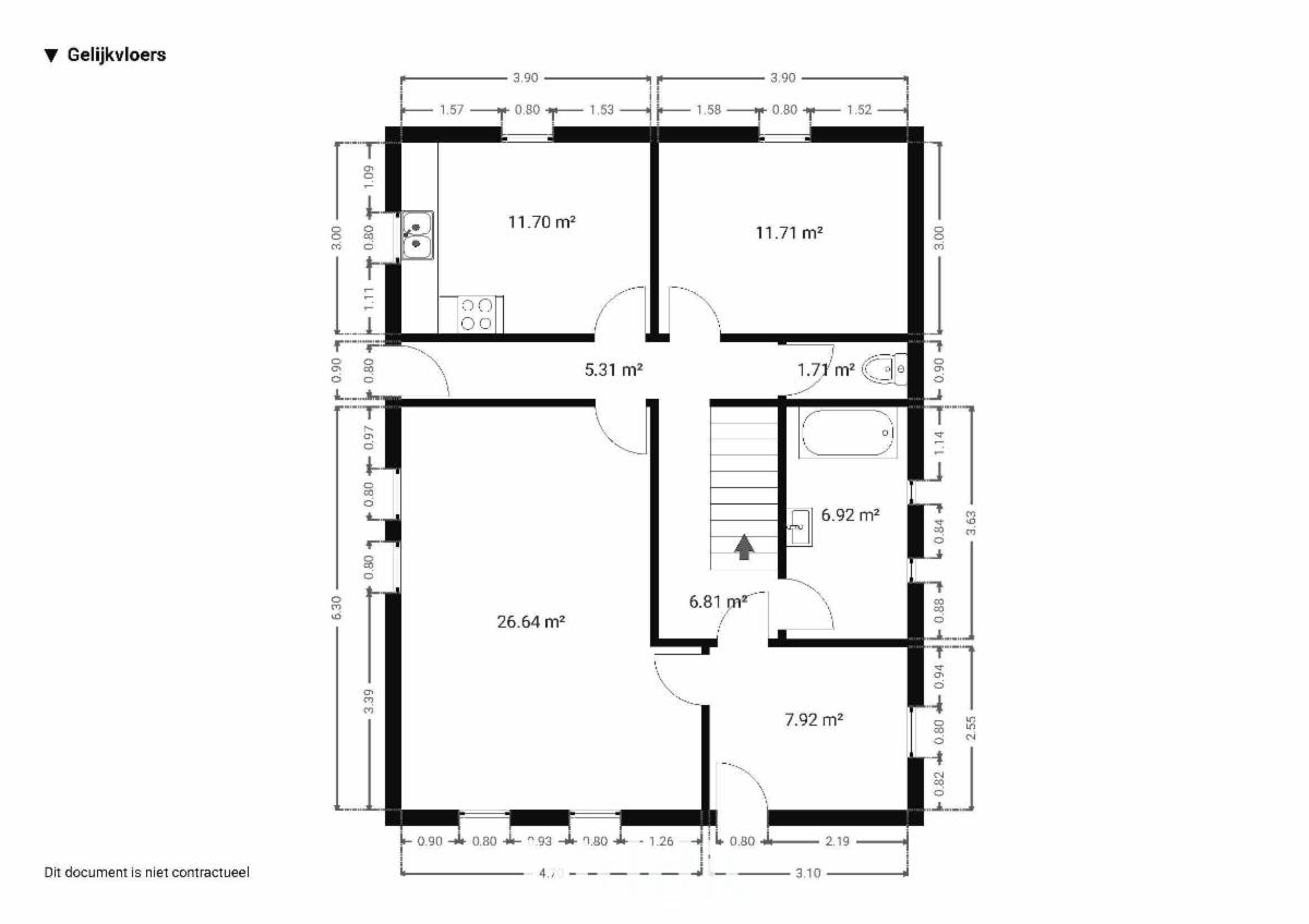
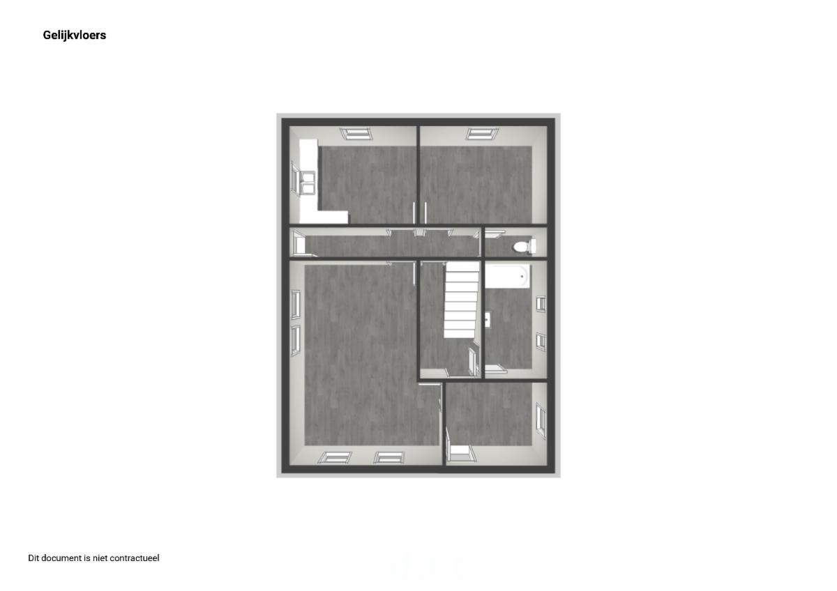
Op het gelijkvloers kom je binnen in een inkomhal met aparte gastentoilet. Verder vind je op dit niveau een leefruimte, een keuken, een berging, een badkamer voorzien van ligbad en lavabo-meubel en slaapkamer.
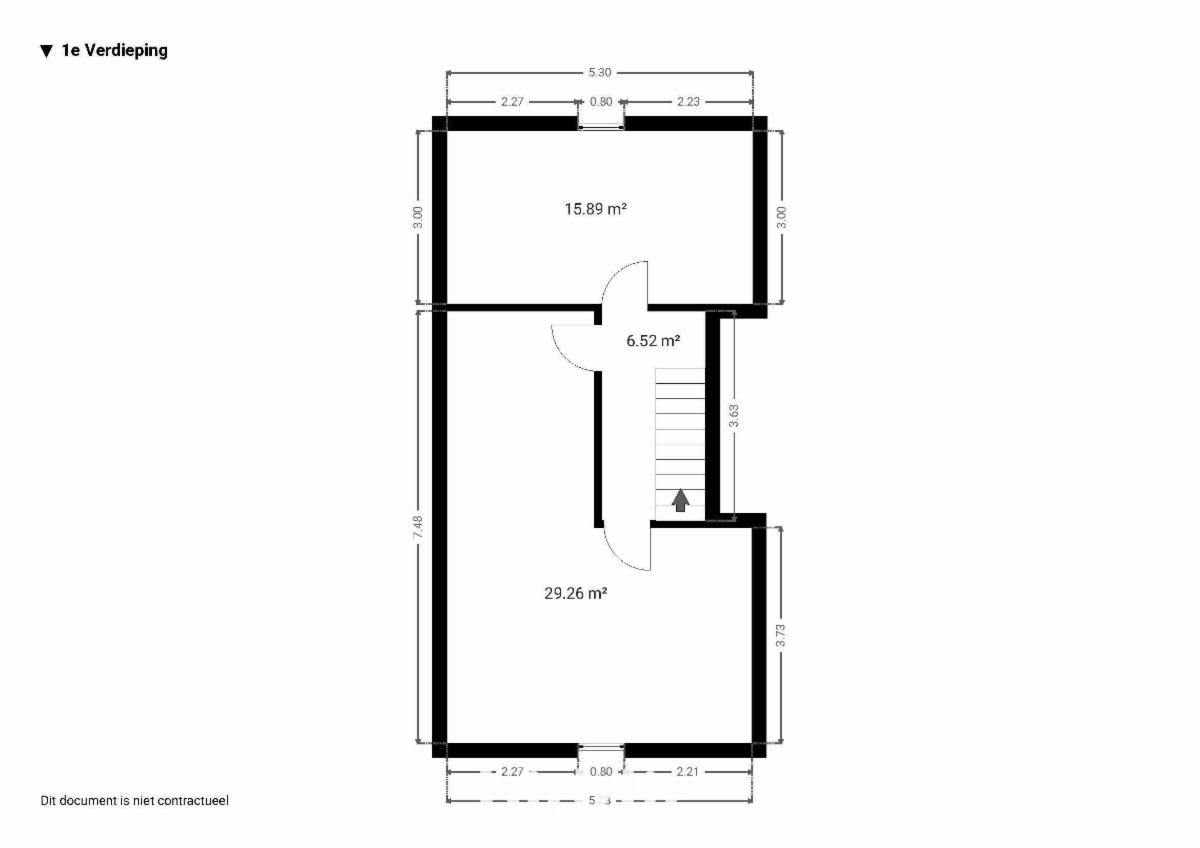
De eerste verdieping omvat een tweede slaapkamer, en een zolderruimte die nog niet werd afgewerkt.
Ter info: gelieve als bieder bijzondere aandacht te vestigen op de verschillenden vorming van loten.
Bij wijze van voorbeeld: indien u als bieder interesse hebt in de woning, doch enkel op voorwaarde dat u de aanpalende grond ook kan aankopen, dan raden wij u aan om te bieden op lot 3. Indien u in dit geval immers zou bieden op lot 1 en 2, kan het zijn dat slechts één van deze loten aan u wordt toegewezen daar elk bod bindend is.
BEZOEK: op zaterdag 25/10, 01/11, 08/11 en 15/11 van 10u-12u. G score: A P score: B
302.000 €
Startdatum: 10/11/2025 15:00
Einddatum: 18/11/2025 15:00
Geen bod: 1.000 €
De fiche bekijken op Biddit.beop zaterdag 25/10, 01/11, 08/11 en 15/11 van 10u-12u.